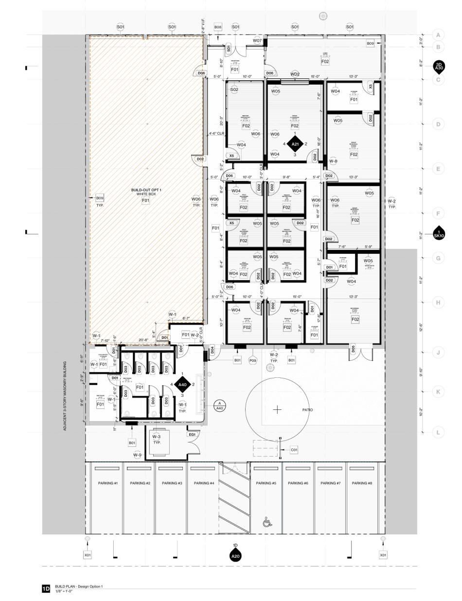
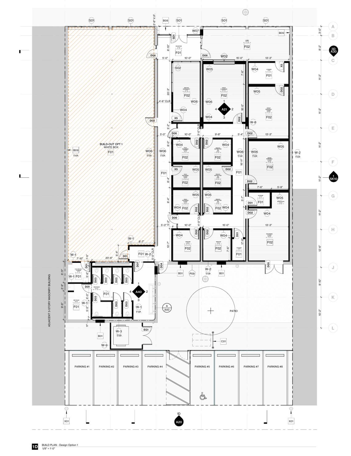
The Community Development Commission has approved $1.55 million in TIF funding for The Workshop, a community-oriented performing arts and gathering space planned at 3741 W. Lawrence. Located midblock, the property is currently occupied by a 100+-year-old building that would be renovated into the home of this new local hub.
Designed by Future Firm, the project will redevelop an existing 6,500 square foot brick building into an arts hub that will offer a multi-purpose space to musicians, community-focused arts organizations, emerging young artists, and other creatively inclined residents of Albany Park.
The Workshop aspires to be a catalyst for economic development, revitalizing a quiet stretch of Lawrence Avenue. The project demonstrates a commitment to equity by supporting BIPOC-led small businesses and arts nonprofits through affordable leases and tenant improvement funds, contributing to the enrichment and vibrancy of the local cultural landscape.
The $3 million project will be financed in part by the approved $1.55 million in TIF in addition to a $1.2 million Community Development Grant, $400,000 in city grant funding from the Equitable Transit-Oriented Development Program, and $100,000 from the Chicago Community Trust Predevelopment Program.
Permits for the project have been filed and are under review. Assuming the organization can close on the Community Development Grant and other financing by May 2026, general contractor Trellis would begin construction in May/June of 2026 and finish around January 2027.



