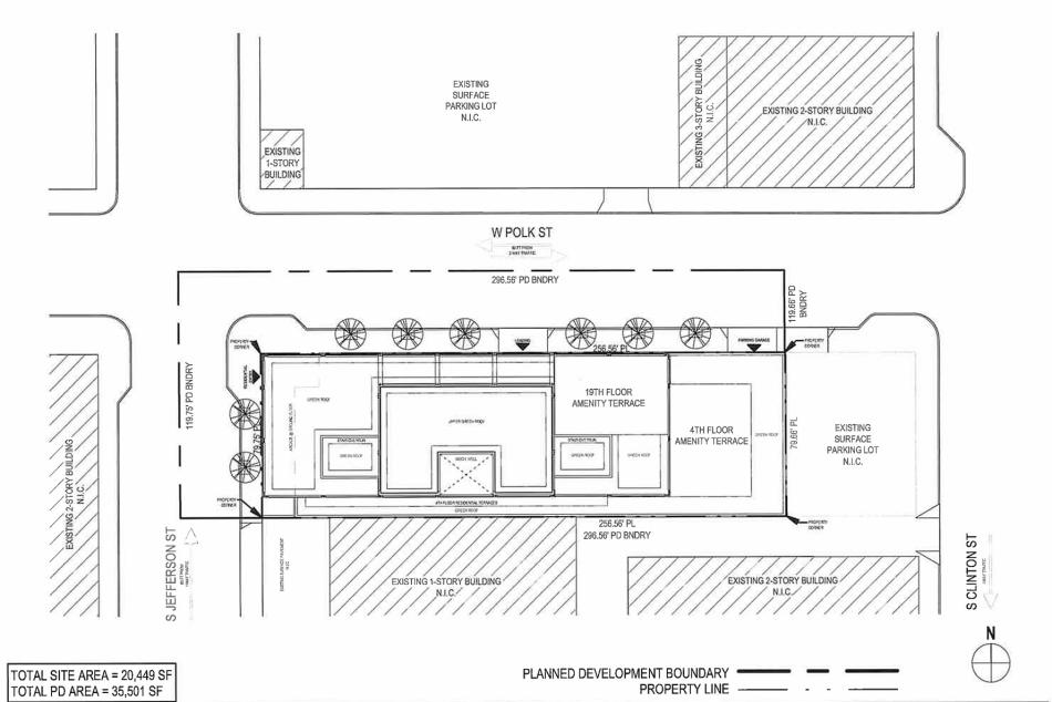
A zoning application has been filed for a proposed 19-story residential development at 557 W. Polk. Planned by Vahooman Mirkhaef, the project site is located at the intersection of W. Polk St and S. Jefferson St. The three-story office building on the site is currently the headquarters of Mirkhaef’s environmental consulting firm, Environmental Group Services Limited.
Designed by Hartshorne Plunkard Architecture, the new development would take the form of a 19-story residential building that would top out at 227 feet tall. The building would deliver 237 residential units, 102 car parking spaces, and 237 bike parking spaces.
To meet ARO requirements, the developer is proposing to include 12 affordable units in the building, 12 units somewhere else within the 28th Ward, and pay a fee in-lieu for the remaining 23.4 units obligated to meet the 20% requirement.
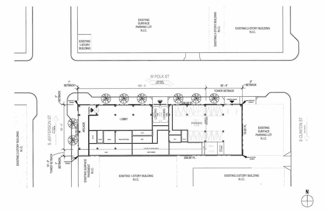
On the ground floor, the building’s lobby would face the corner of S. Jefferson St and W. Polk St. The building’s loading access would be via a curb cut on W. Polk St to the east of the lobby. Parking would be accessed also from W. Polk St with 14 spaces on the ground floor and a ramp connecting up to the rest of the parking spaces located within the podium. The remainder of the ground floor would have mechanical spaces along the back of the property.
The building design features a four-story podium clad in a gridded brick facade with the residential tower interlocking into the base. The tower would be clad in a gridded metal panel with window wall infill topping out at 227 feet tall.
To allow for the scope of the project, the developer is seeking to rezone the site from DS-5 to DX-7 with a Planned Development designation. The developer also plans to pay into the Neighborhood Opportunity Fund to receive a 4.5 FAR bonus. Approvals will be needed from the Chicago Plan Commission, Committee on Zoning, and City Council.





