An affordable housing development is in the works at 3251 W. Division. Planned by Hispanic Housing Development Corporation, the project site is a vacant lot at the corner of W. Division St and N. Spaulding Ave.
Designed by WJW Architects, the proposal would take shape as a six-story, affordable residential building. The project will feature 44 affordable residential units designated for those making 50-60% AMI, with a unit mix of 12 one-beds, 25 two-beds, and 7 three-beds.
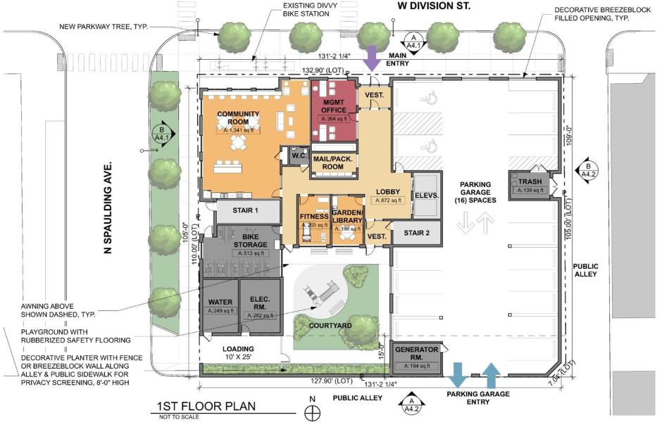
The project’s ground floor will have a community room, fitness room, library room, management office, and bike storage. The residential entry will face W. Division St with the eastern half of the ground floor having 16 car parking spaces accessed from the alley. An outdoor courtyard will be located at the back of the site for residents.
The current scheme for the site was recently presented at a community meeting hosted by the 26th Ward. This version of the project comes after hearing neighborhood feedback on the development. In response to concerns about the building height, the redesigned structure includes setbacks to reduce the visual impact and acknowledge the neighborhood context. The project also incorporated more parking to better serve residents and reduce the effect on the neighborhood and reduced the building’s unit count in response to concerns about the project’s density.
To finance the $36 million development, the developer is looking to get IHDA 9% tax credits, City of Chicago and IHDA soft debt, and Freddie Mac permanent debt. The team submitted for IHDA funding in September 2025, for CHA vouchers in Dec 2025, and plan to apply for City of Chicago soft debt in March 2026.
The project is also seeking a rezoning from B1-1 to B2-5 to allow for the scope of the development. Approvals will be needed from the alderman, the Committee on Zoning, and full City Council. Pending funding approvals, the developer anticipates construction to start in June 2027 with completion targeted for September 2028.




