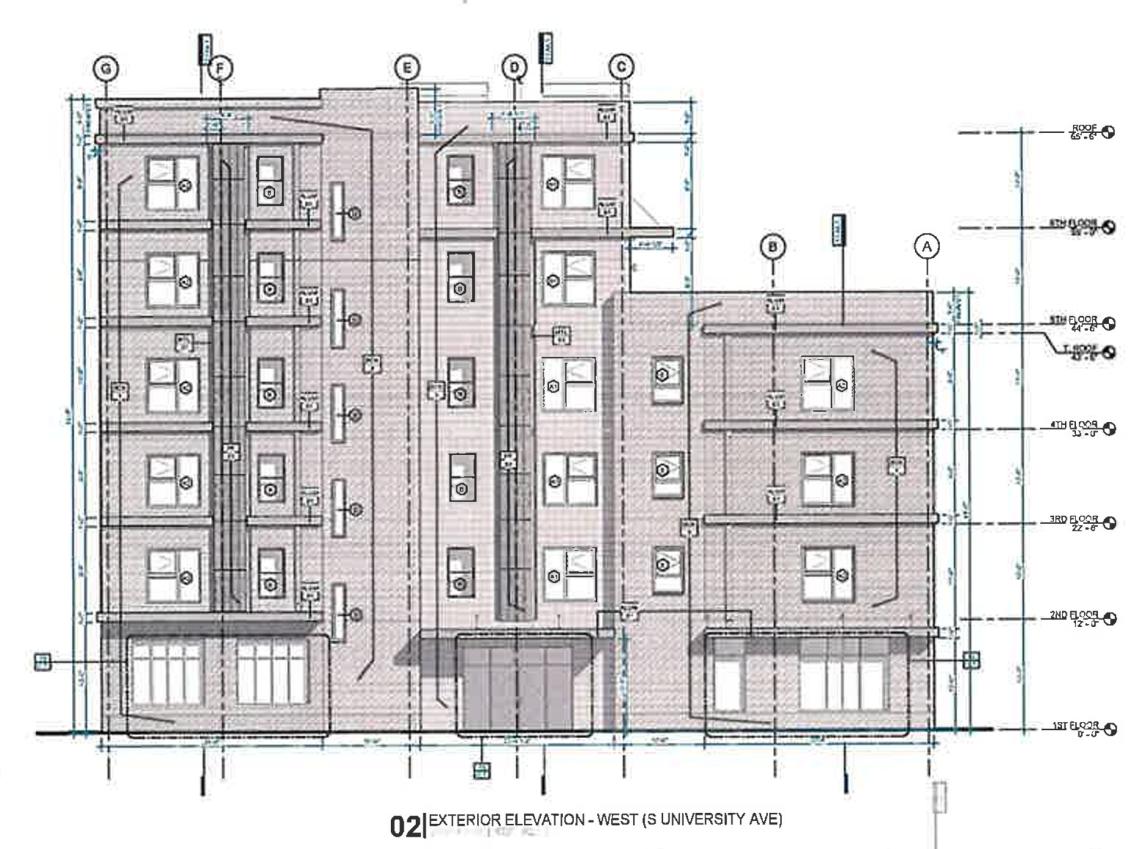
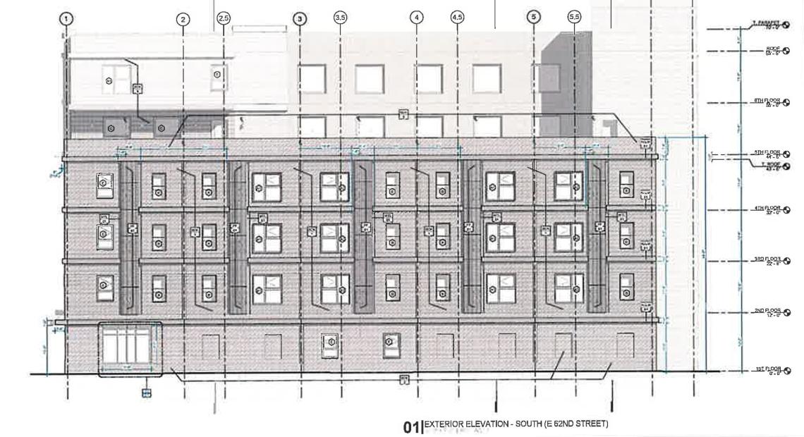
A zoning application has been filed for a proposed affordable senior housing development at 6155 S. University. Planned by 5T Management in collaboration with Woodlawn Baptist Church, the project site is located at the northeast corner of S. University Ave and E. 62nd St and is currently a concrete sports court.
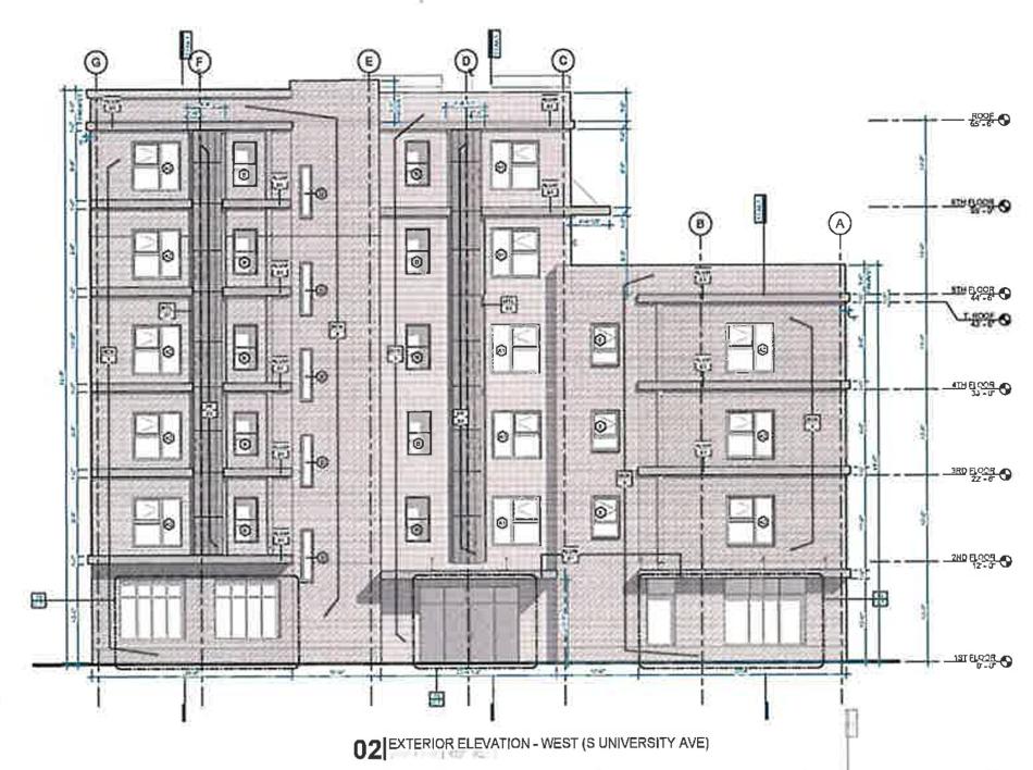
Designed by Barry Architecture, the proposed development, dubbed WBC Manor, would take shape as a six-story, U-shaped courtyard building rising approximately 66 feet in height. The building will have 46 affordable apartments served by four accessible parking spaces.
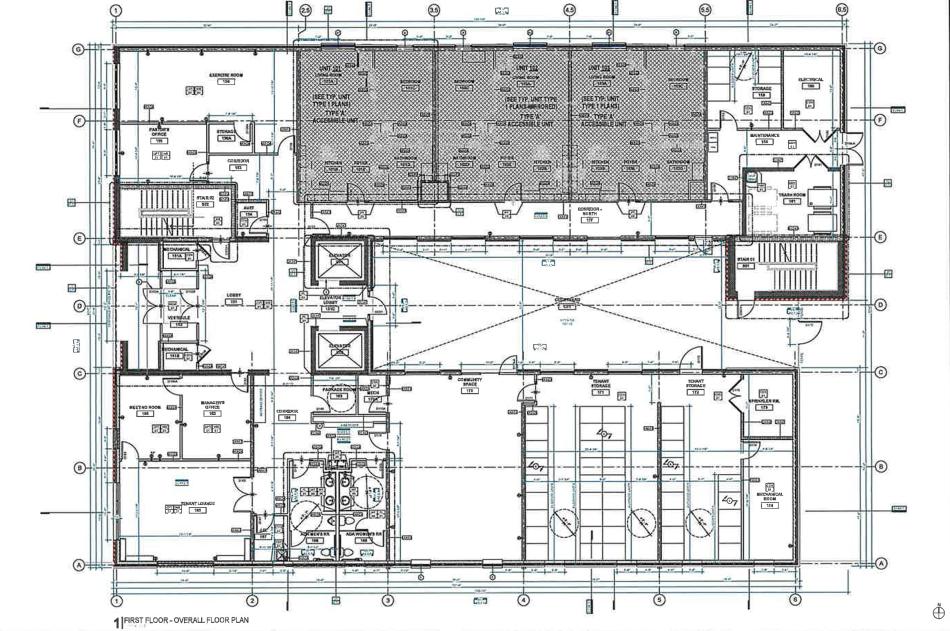
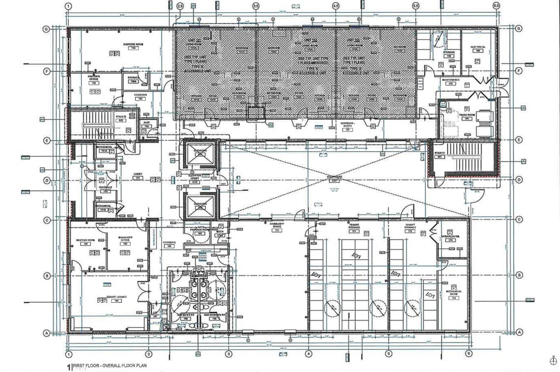
On the ground floor, the building will have a central lobby facing S. University Ave with a tenant lounge, community space, and tenant storage in the southern leg along E. 62nd St. The north leg of the ground floor will have an exercise room, pastor's office, and three residential units.
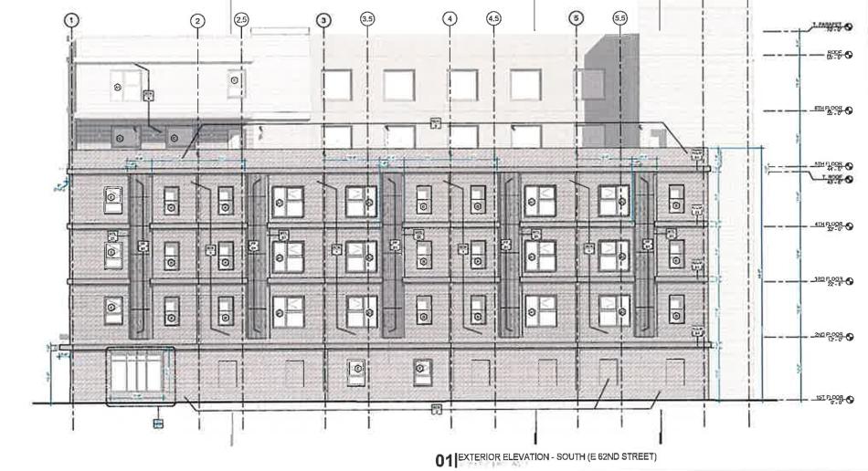
As the building rises, the typical residential floors will continue the U-shaped courtyard layout. The fourth and fifth floors will be partial floors as they eliminate the southern leg of the floor plate. An outdoor rooftop deck and terrace will be accessed on the fifth floor via a community room amenity space.
To allow for the scope of the project, the developer is seeking to rezone the site from RM-5 to RM-6. Approvals will be needed from the Committee on Zoning and City Council. A timeline for the development has not been announced.




