The Chicago City Council has approved a residential development at 2343 W. Chicago. Planned by Panoptic Group, the project site is a midblock site located near the intersection of N. Western Ave and W. Chicago Ave. A one-story building currently occupies the site.
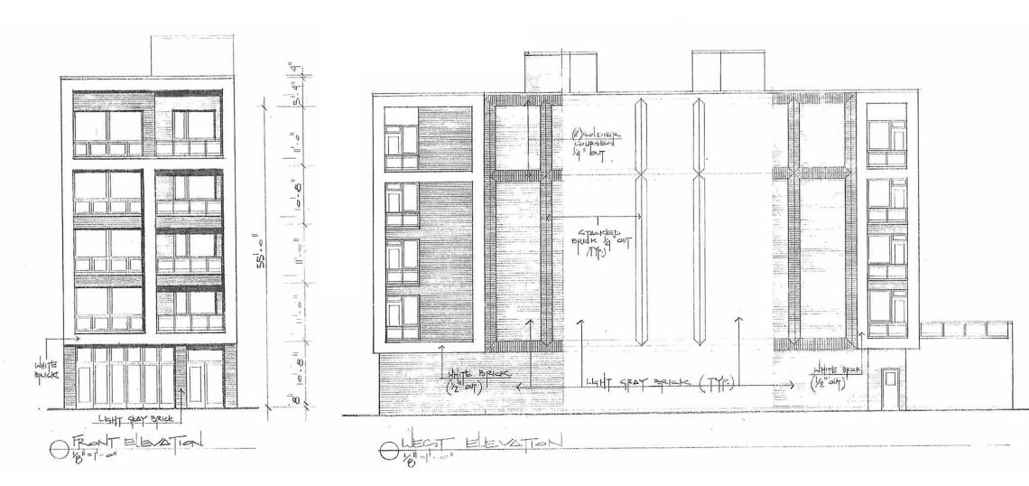
Designed by Hanna Architects, the five-story residential building will stand 61 feet tall, and feature six condominium units served by six parking spaces. A condo resident amenity space will also be included on the ground floor.
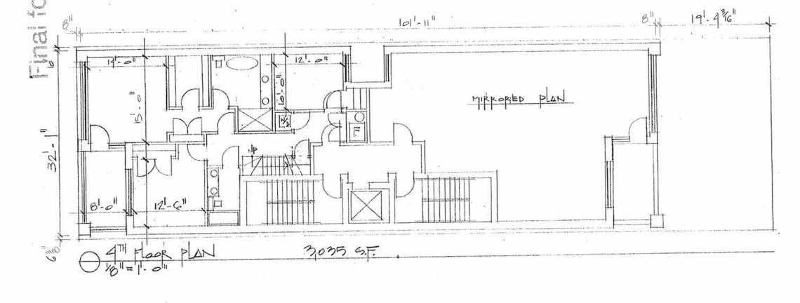
The building’s ground floor will front the street with the resident amenity space and the residential entry. The remainder of the ground floor will be made up of an interior parking garage providing six parking spaces.
On the upper floors, the project will include six condominium units. The second and third floors will have two two-bedroom units each. The fourth and fifth floors will have two three-bedroom duplex condos that include access to private rooftop decks.
With City Council approval secured, the site will be rezoned from C1-3 to B2-5 to allow for the scope of the project. A demolition permit to raze the existing building has already been issued.





