The Chicago City Council has approved a rezoning for the mixed-use development at 900 W. Fulton. Planned by Midwest Property Group LTD, the project site is located at the northwest corner of the intersection of W. Fulton Market and N. Peoria St.
Designed by NORR, the development will rehabilitate the four-story building at 900 W. Fulton, build a new five-story structure at 906 W. Fulton, and rehabilitate the two-story building at 910 W. Fulton. Across the three interconnected buildings, the project will feature approximately 29,665 square feet of retail and commercial space as well as nine residential units.
The building’s ground floor will be home to retail space divided into each building and the residential lobby will be located near the back of the building fronting N. Peoria St. Residents will have access to bike parking in the basement, but there is no car parking planned for the development.
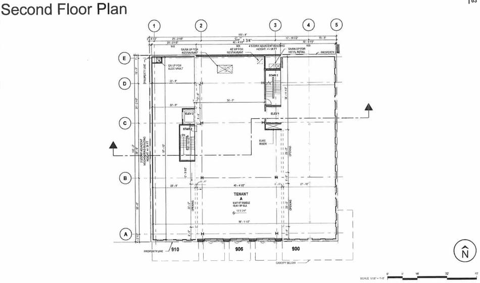
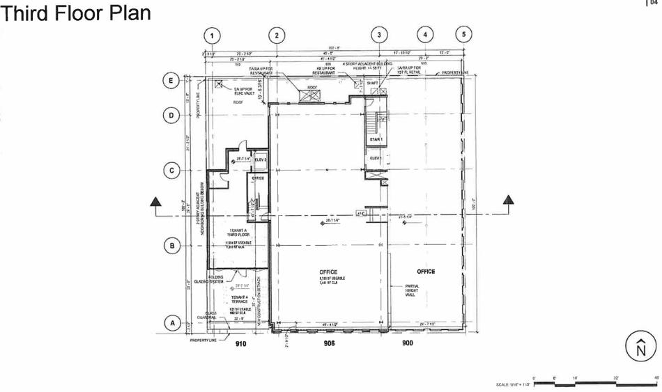
On the second floor, the entire floor plate across the three structures will be one large commercial space measuring approximately 10,000 square feet. The third floor will have office space within the 900 and 906 W. Fulton buildings with a small third floor component for the second-floor commercial tenant above the 910 W. Fulton building setback from the street.
With a total of nine units, the residential component of the project will occupy the top two floors of the building. The fourth floor will have seven residential units, and the fifth floor will have two residential units. The project’s unit mix will include four one-beds and five two-beds.
With City Council approval secured, the property will be rezoned back to DX-5 from its current Planned Development to allow for the revised development plan. The developer can now move forward with permitting and construction. A timeline for the project has not been announced.







