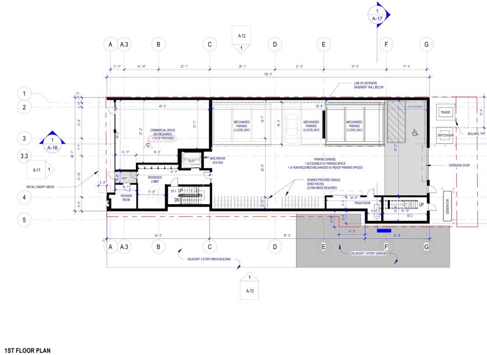
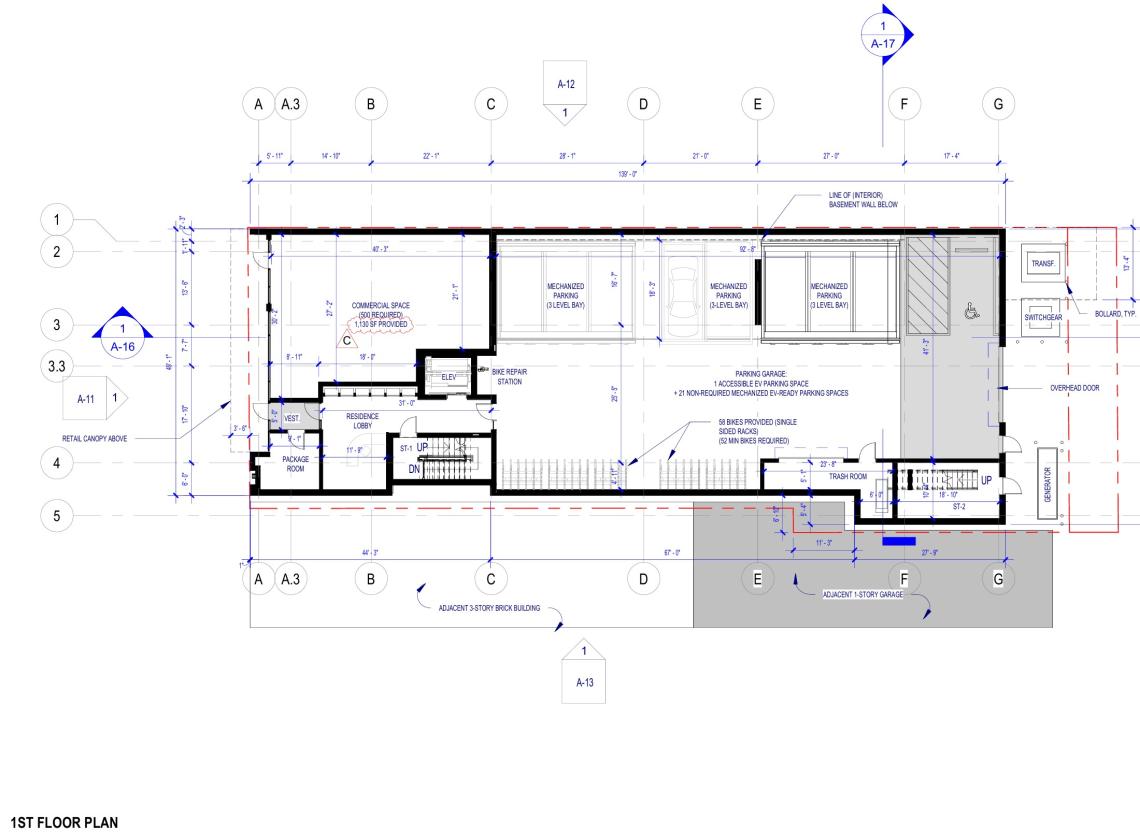
A mixed-use development is in the works at 315 S. Jefferson. Planned by Jefferson 315 S LLC, the project site is a midblock parcel along S. Jefferson St between W. Jackson Blvd and W. Van Buren. The property is currently being used as a surface parking lot.
Designed by Built Form LLC, the project would take shape as a nine-story residential building reaching 109 feet in height. The building will feature 52 residential units, 1,130 square feet of retail space, 22 car parking spaces, and 58 bike parking spaces.
On the ground floor, the retail space and residential lobby will occupy the building’s street frontage. The back portion of the ground floor will be an interior parking garage with 58 bike parking spaces and 22 parking spaces. 21 of the spaces are organized into a vertical mechanized parking system that stacks cars three high, submerging cars into the building’s basement vertically.
The building’s second floor will have four apartments in the front half of the building, and the back portion will be the building’s amenity space, including a fitness center, resident lounge with an outdoor deck, and a shared work area.
Typical residential floors on level three through eight will have seven units per floor, while the ninth floor will have six units. With a total of 52 units, the project’s unit mix will include 14 studios, 23 one-beds, and 15 two-beds.
To allow for the project, the developer is seeking a set of variations from the Zoning Board of Appeals. The variations requested include a variation to reduce the rear setback from the required 30 feet to 11.42 feet on floors containing dwelling units, a variation to reduce the number of off-street parking spaces from eighteen to zero, a variation to eliminate the one required 10' x 25' loading berth, and a variation to reduce the required on-site open space from 1,872 square feet to 280 square feet.
The project is on the agenda for the Zoning Board of Appeals meeting later this month. If approved, the developer can move forward with permitting and construction. A timeline for the project has not been announced.






