A mixed-use development is being proposed at 1040 W. Belmont. Planned by Kiferbaum Development Group, the project site is a midblock property near the intersection of W. Belmont Ave and N. Kenmore Ave. The one-story commercial building that is currently occupied by Giordano’s would be demolished to make way for the project.
Designed by Jonathan Splitt Architects, the five-story building would stand 76 feet tall and feature 28 residential units, 4,400 square feet of retail space, 8 parking spaces, and 28 bike parking spaces. To meet ARO requirements, the project would include six affordable units.
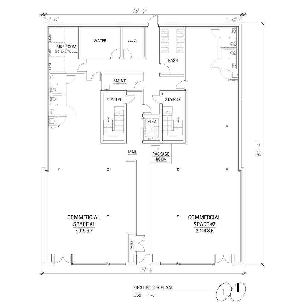
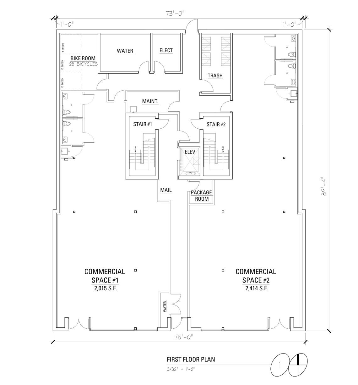
The building’s ground floor would have two retail spaces fronting W. Belmont Ave separated by the building’s residential entry. The bike room and mechanical spaces will be located at the back of the building. Eight exterior parking spaces will be located behind the building along the alley.
On the upper floors, each floor will have seven residential units with an overall unit mix of 8 studios, 4 one-beds, and 16 two-beds. Rear units will have balconies facing the alley and all residents will have access to a shared rooftop deck.
To allow for the scope of the project, the developer is seeking to rezone the site from B3-2 to B3-3. Approvals will be needed from the local alderman, Committee on Zoning, and City Council. A timeline for approvals or construction has not been announced.




