A mixed-use development is in the works at 3007 W. Irving Park. Planned by Lukaven Development, the project site is located midblock between N. Sacramento Ave and N. Whipple St. The property is currently occupied by a one-story commercial structure and two two-story mixed-use buildings.
Designed by Thomas Architects, the proposed development would stand five stories tall with 20 residential units, approximately 2,800 square feet of retail space, 15 parking spaces, and 20 bike parking spaces. To meet affordability requirements, four of the units will be set aside as affordable housing.
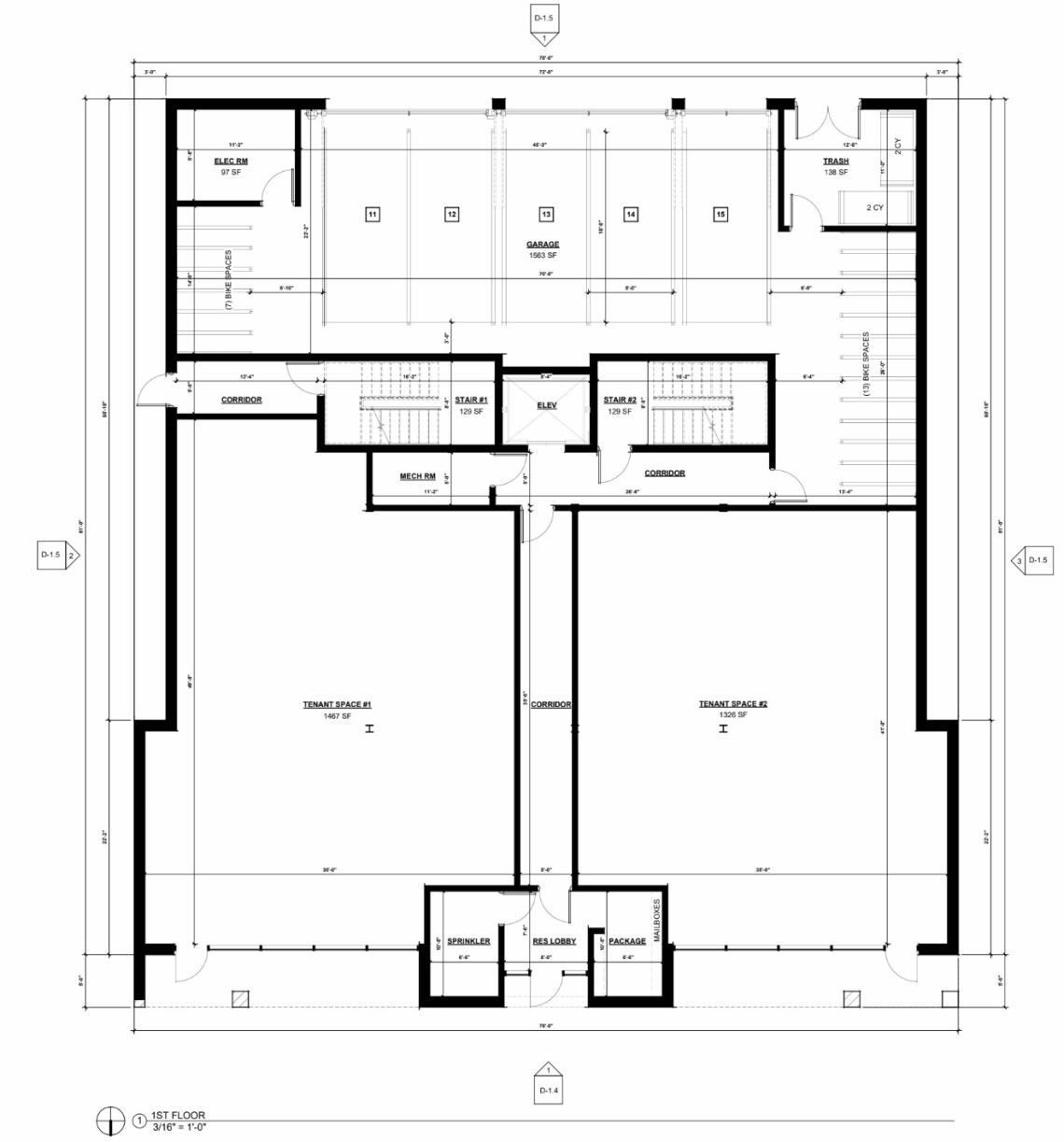
On the ground floor, the building’s street frontage will have the residential entrance at the center flanked by two separate retail spaces that will together measure about 2,800 square feet. The back of the building will have an interior garage for five cars and the 20 bike parking spaces. Accessed from the alley, the back of the property will have the remaining 10 parking spaces.
With a total of 20 rental apartments, the upper four floors of the building will have five units per floor. All of the apartments will be two-bedroom layouts and will have private balconies integrated into the front and rear facades.
To allow for the scope of the project, the developer is seeking to rezone the site from B3-1 to B3-3. Approvals will be needed from the Committee on Zoning and City Council. The developer is hoping to begin construction in April 2026 and finish by April 2027.




