A zoning application has been filed for a mixed-use development at 526 N. Western. Planned by Panoptic Group, the project site is located midblock between W. Grand Ave and W. Ohio St. The property is currently occupied by a one and two-story brick building that would be demolished to make way for the project.
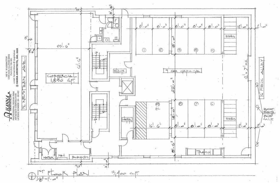
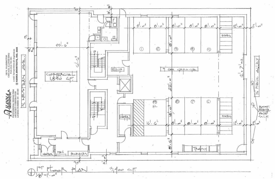
Designed by Hanna Architects, the proposed development would take shape as a five-story, mixed-use building rising approximately 59 feet tall. The project would include 1,830 square feet of ground floor commercial space, nine residential units, and nine parking spaces.
The building’s ground floor features the 1,830 square feet of retail space occupying the majority of the project's street frontage, with a small residential entry next to it. The back of the ground floor will have an interior parking garage with nine parking spaces and bike parking.
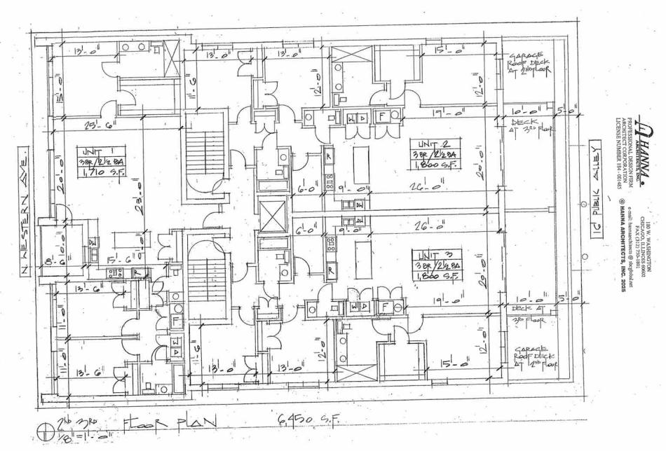
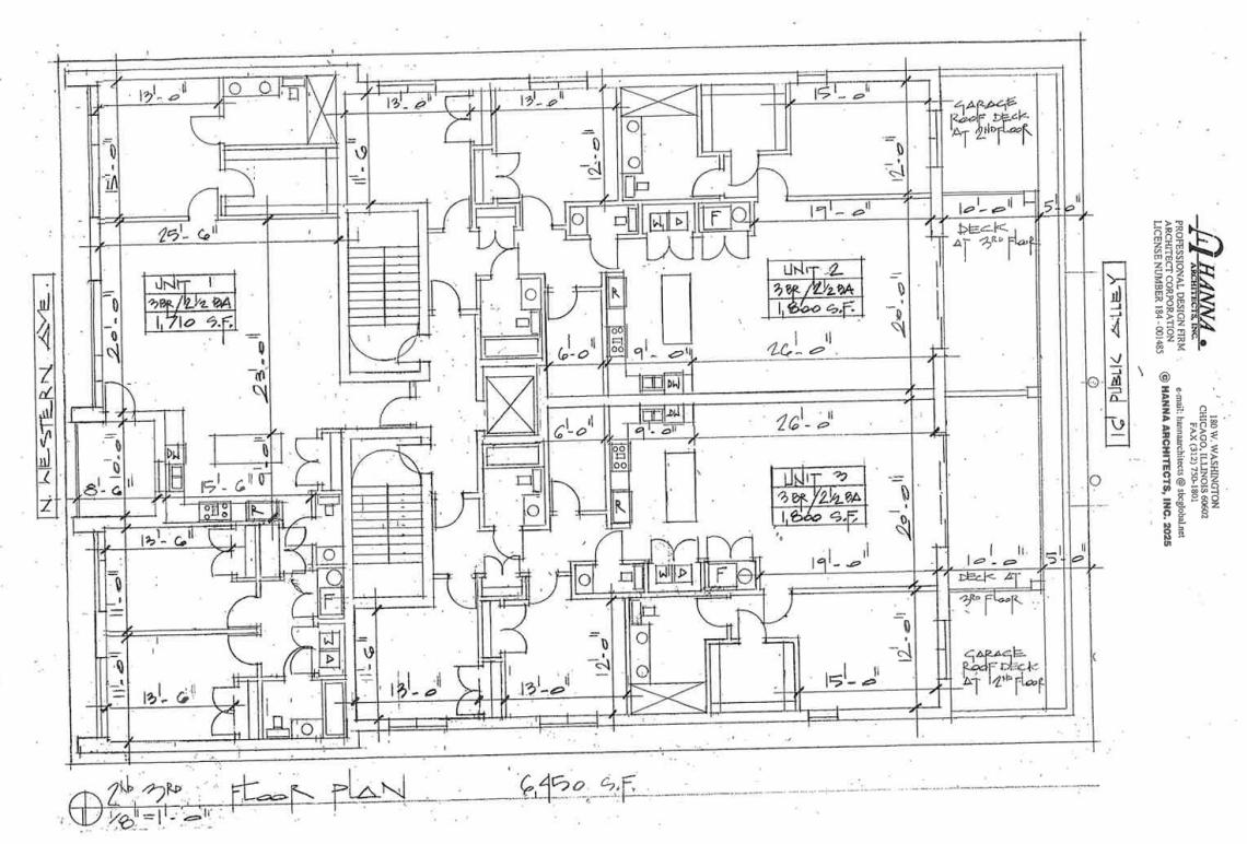
On the upper floors, each floor will have three units, which will all be three-bedroom layouts. Outdoor balconies have been integrated into the building design, providing outdoor space for every unit. The three units on the fourth floor will have staircases up to a family room space on the fifth floor that connects to large private roof decks for each of those three units.
To allow for the scope of the project, the developer is seeking to rezone the site from C1-2 to C1-3. Approvals will be needed from the Committee on Zoning and City Council.




