A zoning application has been filed for a mixed-use development proposed at 6501 S. Cottage Grove. Planned by Community Venture Investment Corp, the project site is located at the southeastern corner of E. 65th St and S. Cottage Grove Ave and is currently occupied by a one-story building and surface parking lot.
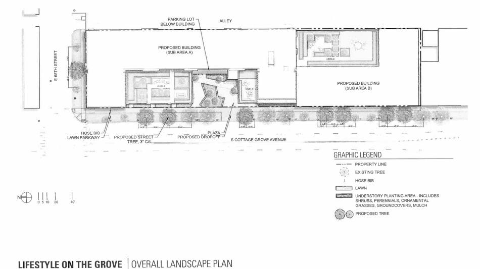
Designed by HED Architects, the mixed-use development, dubbed Lifestyle on the Grove, is planned to be divided into two phases. The first phase will occupy the northern two-thirds of the site and take shape as a four-story structure with 51 apartments, 24 parking spaces, and 51 bike parking spaces. The second phase will occupy the southern end of the site and will have 33 units, 28 parking spaces, and 33 bike parking spaces within another four-story building. Across the two buildings, the project will feature 18,000 square feet of commercial space.
Rising 50 feet tall, the buildings have been designed with facades made up of masonry, composite wood paneling, and dark metal panels. The first phase building has been designed in a U-shape with an exterior plaza along S. Cottage Grove Ave and a resident amenity deck on the second floor. The second phase building will have a resident deck on the second floor in the back of the building.
To allow for the scope of the project, the developer is seeking to rezone the site from C1-2 and B3-2 to a unified B3-3 with a Planned Development designation. Approvals will be needed from the Chicago Plan Commission, Committee on Zoning, and City Council.



