The Permit Review Committee has approved plans for a mixed-use development at 4725 N. Clifton. Located within the Uptown Square Historic District, the project site is located at the intersection of N. Broadway and N. Clifton Ave. Planned by CEDARst Companies, the property is a long surface parking lot that extends up to W. Lawrence Ave.
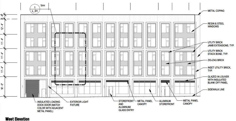
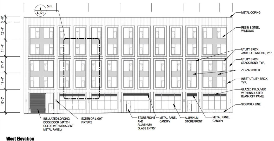
Designed by Hirsch MPG, the new mixed-use development will stand five stories tall, reaching 66 feet in height. The building will occupy the southern one-third of the site’s long parking lot, building up against the existing historic building to the south. Designed with no setbacks, the building is in keeping with the character of the historic district and the majority of the historic buildings also do not have setbacks. Backing up to the tracks, floors with residential units will have a 15-foot setback.
On the ground floor, the retail space will be located at the south of the building overlooking the intersection of N. Broadway and N. Clifton Ave, with the residential entry north of it. The building’s loading dock will be accessed via a curb cut on N. Clifton Ave. The upper floors of the building will have 40 residential units.
The building’s design consists of a contemporary masonry facade. Clad in red brick, the building’s south end is chamfered so that it does not extend past the adjacent historic building, maintaining views of it and to not overpower it. The building’s windows are grouped into pairs of twos and fours separated vertically by a fluted brick pattern and framed by a thin projecting course of brick.
With approval from the Permit Review Committee secured, the developer can move forward with permitting and construction. Permits have been filed for the project, but a timeline for the construction has not been announced.




