A residential development is in the works at 1030 W. Oakdale. Located in Lakeview, the project site is a midblock property along W. Oakdale Ave between N. Sheffield Ave and N. Seminary Ave. The existing two-story structure on the site will need to be demolished to make way for the new development.
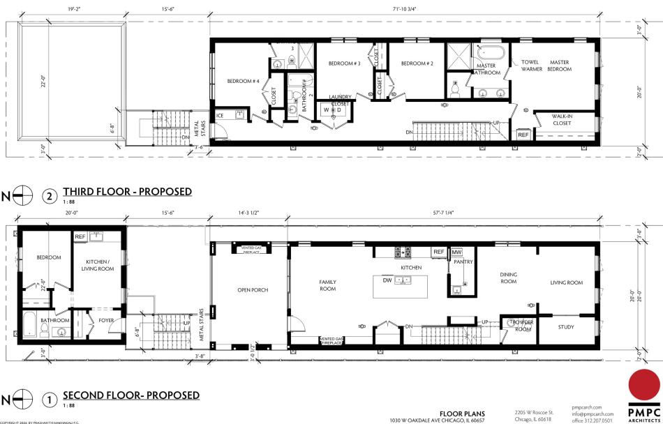
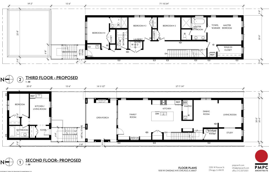
Designed by PMPC Architects, the new construction would take shape as a three-story masonry building. The three-story building is planned to have two four-bedroom duplex units split between the basement and first floor for the first unit and the second and third floors for the second unit. At the back of the site, the garage will have two car parking spaces accessed from the alley with a one-bedroom ADU unit located above the garage.
To allow for the scope of the project, the developer is seeking to rezone the site from RS-3 to RT-4. Approvals will be needed from 44th Ward Alderman Lawson, the Committee on Zoning, and City Council.


