A zoning application has been filed for a residential development at 1257 W. Fry. Planned by Vam Development, the project site is a midblock site near the intersection of W. Fry St and N. Elizabeth St. The property is currently occupied by a one and a half-story residential building and a rear garage.
Designed by Hanna Architects, the proposed development would take shape as a four-story building reaching approximately 52 feet tall. The building is planned to include four residential units, likely condos, and four parking spaces in a garage along the rear of the site accessed from the alley.
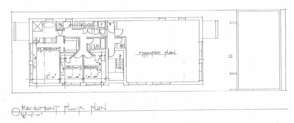
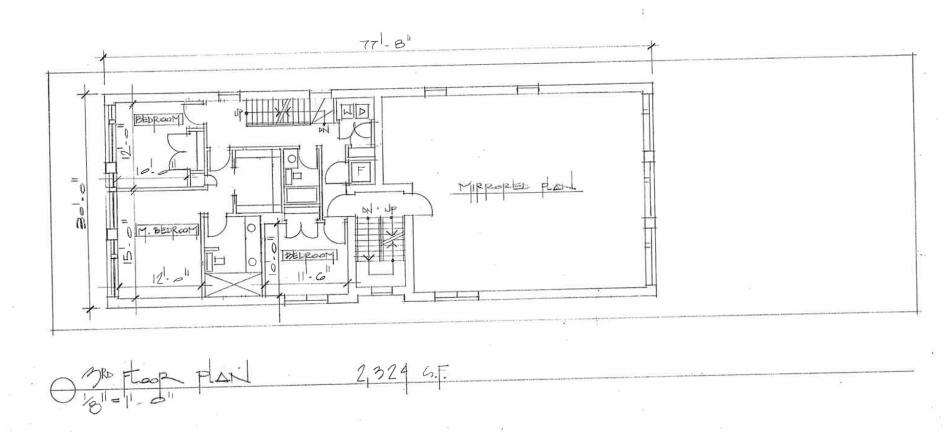
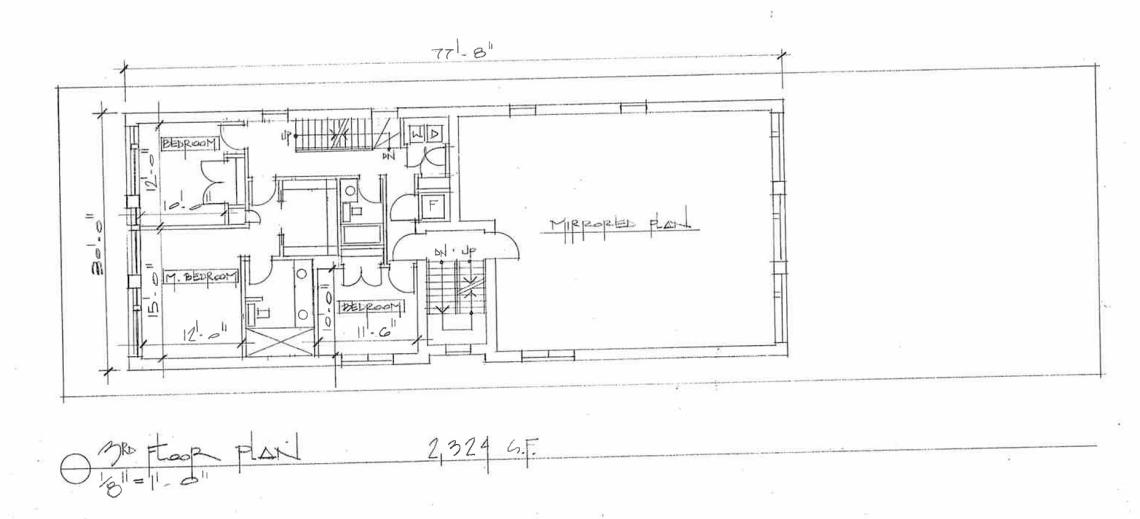
Inside the building, two three-bedroom duplex down units will occupy the ground floor and basement. Two more three-bedroom units will occupy the second and third floors with connections up to a den space for each unit on the fourth floor that opens up to an outdoor roof deck.
To allow for the scope of the development, the developer is seeking to rezone the site from RS-3 to RM-4.5. Approvals will be needed from the Committee on Zoning and City Council.






