A zoning application has been filed for a proposed residential development at 1801 N. Winnebago. Planned by 1801 N. Winnebago LLC, the project site is located at the northeastern corner of W. Bloomingdale Ave and N. Winnebago Ave and is bounded by the CTA tracks along its eastern boundary. The property is currently occupied by a small one-story structure and surface parking.
Designed by Red Architects, the proposed four-story residential building would hold 30 residential units, 23 parking spaces, 30 bike parking spaces, and no commercial space.
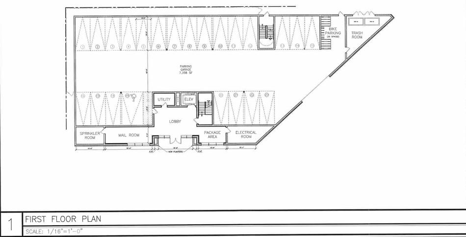
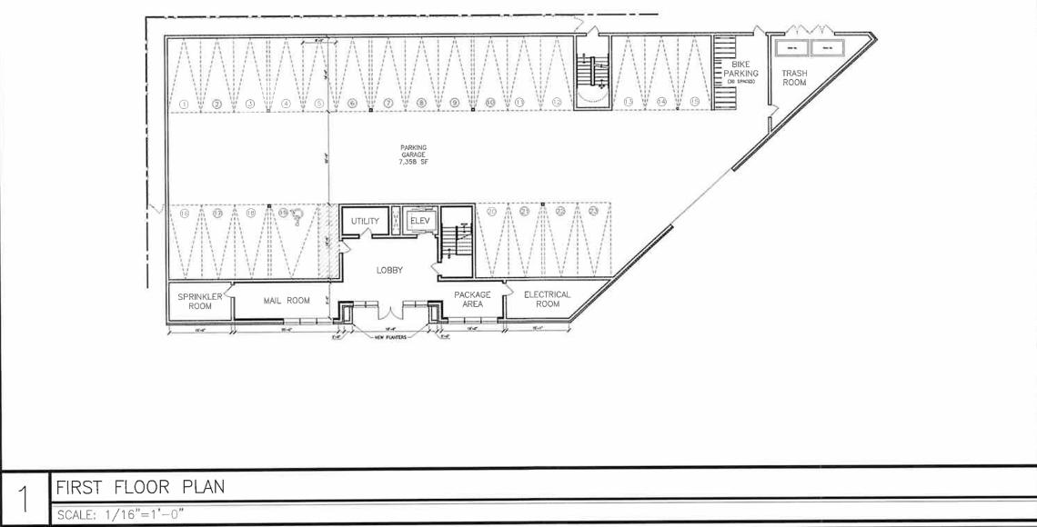
The building’s ground floor would have the residential lobby with mail room and package area fronting N. Winnebago Ave, while the remainder of the ground floor would be occupied by the 23 car parking spaces, bike parking, and mechanical spaces. The parking garage would be accessed via a curb cut on W. Bloomingdale Ave.
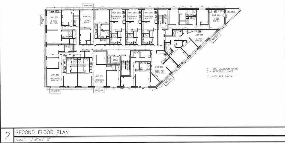
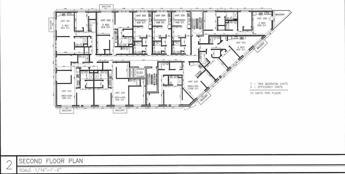
With a total of 30 apartments, the upper three floors would have 10 residential units per floor with a unit mix of 9 studios, and 21 two-beds. Select units will have private balconies hanging off the building facades and a shared rooftop deck will be available to all residents on top of the building.
To allow for the scope of the development, the developer is seeking a rezoning from M1-2 to B2-3. Approvals will be needed from the local alderman, the Committee on Zoning, and full City Council.




