A zoning application has been filed for a proposed residential development at 2210 W. Belmont. Planned by Barrett Homes, the project site is a midblock property near the intersection of W. Belmont Ave and N. Leavitt St. The two one-story commercial buildings that currently occupy the site would be demolished.
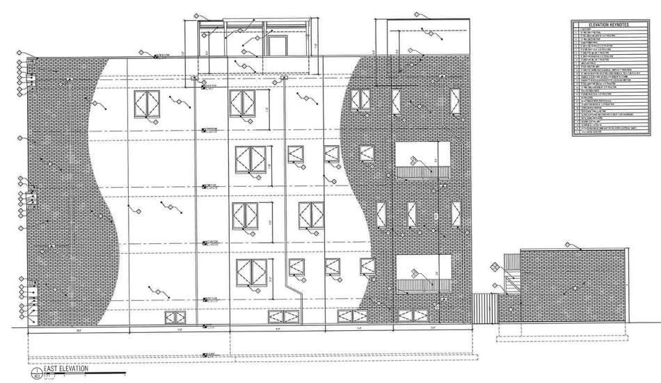
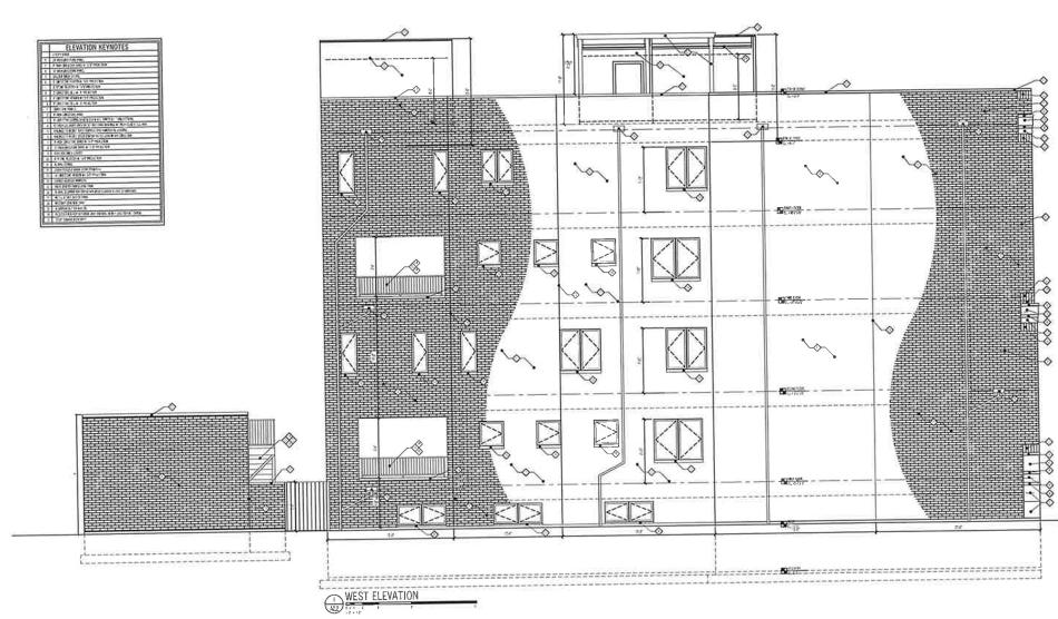
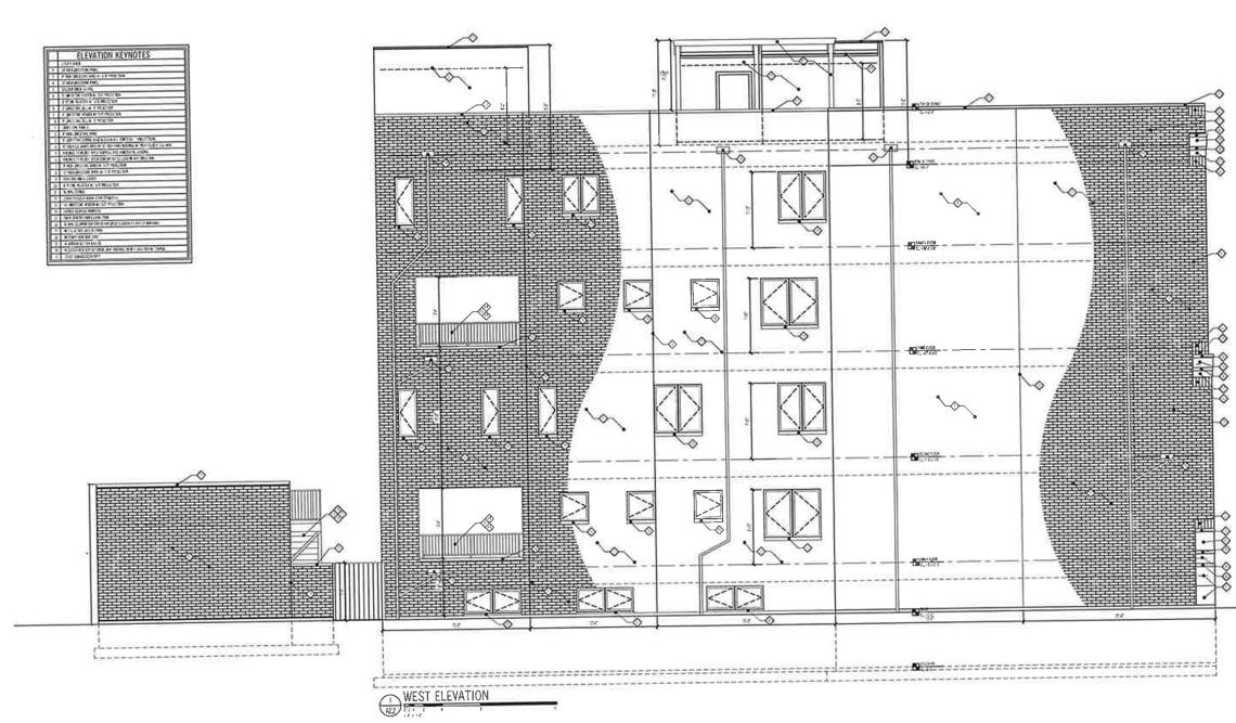
Designed by 360 Design Studio, the new development would take shape as a four-story building rising approximately 48 feet in height. The project will have six residential units, likely condos, and six parking spaces located in a garage at the back of the site accessed from the alley.
The building’s ground floor and basement will have two four-bedroom duplex down units, with private decks at the back of the ground floor. The second floor will have two three-bedroom units featuring front porches facing the street. The third and fourth floors of the building will have another two four-bedroom duplex units that will have private decks at the back of the third floor as well as access to private rooftop decks on top of the building.
To allow for the scope of the project, the developer is seeking to rezone the site from C1-1 to B2-2. Approvals will be needed from the Committee on Zoning and City Council.



