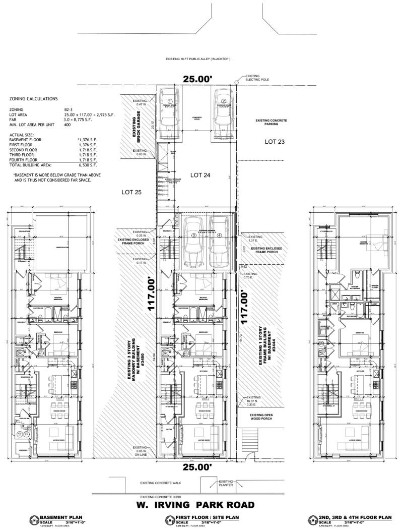
A residential development is in the works at 3446 W. Irving Park. Planned by City & Suburban Homes LLC, the project site is a midblock site between N. Bernard St and N St Louis Ave. The existing two-story structure on the property will be demolished to make way for the new development.
Designed by SPC Design Group, the new building will be a four-story brick building that will be all residential. The project will have one two-bedroom unit per floor, including the basement for a total of five residential units. The building will be served by four car parking spaces and five bike parking spaces at the back of the ground floor accessed from the alley.
To allow for the scope of the project, the developer is seeking to rezone the site from B3-1 to B2-3. Approvals will be needed from the local alderman, Committee on Zoning, and City Council. If approved, the developer plans to begin construction in March 2026 and complete the project by March 2027.


