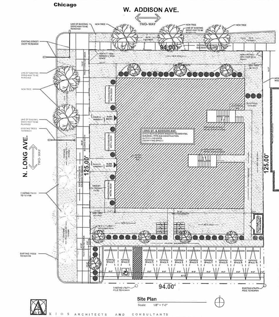
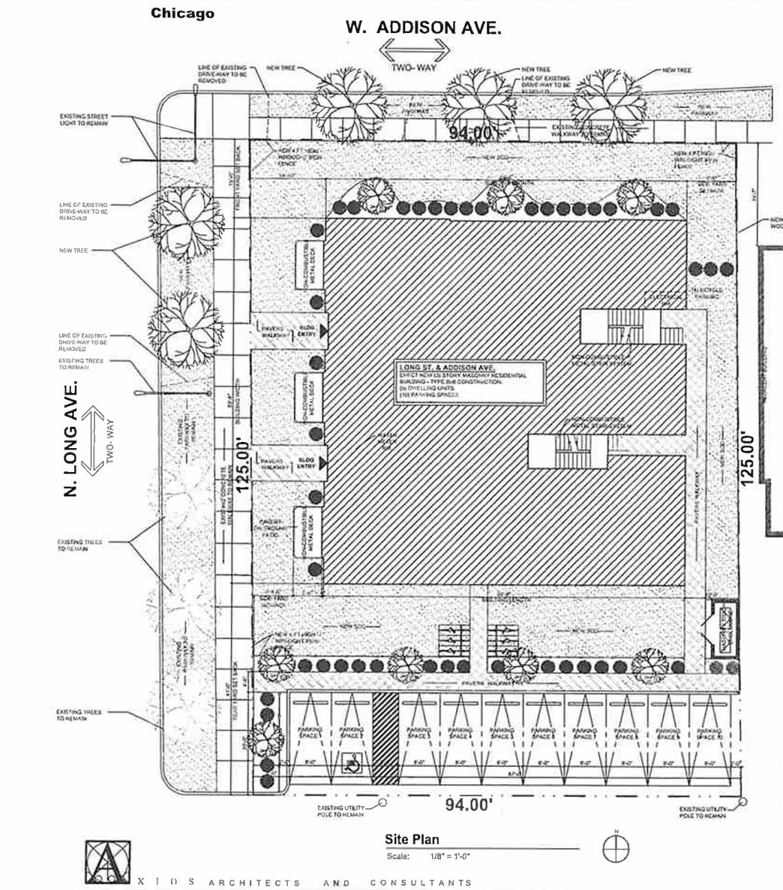
A zoning application has been filed for a proposed residential development at 5351 W. Addison. Planned by Mitch Goltz of GTZ Properties, the project site is located at the southeast corner of W. Addison St and N. Long Ave. The existing site is currently vacant.
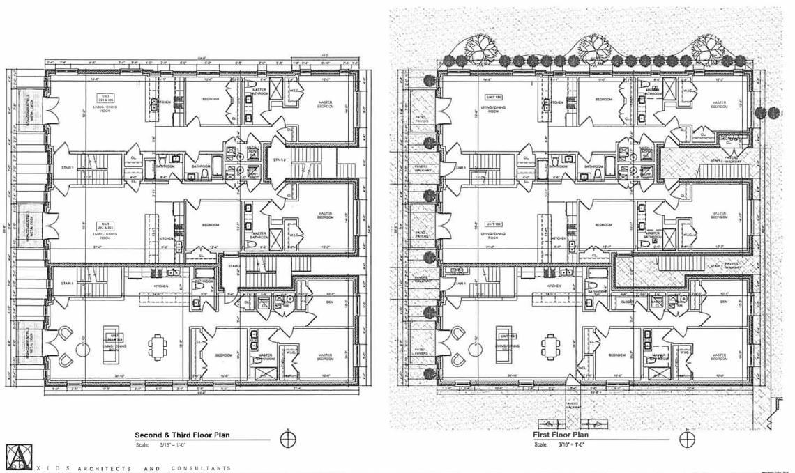
Designed by Axios Architects & Consultants, the new development will take shape as a three-story residential building. The new building will have nine residential units inside, all of them two-bedroom layouts. The project will be served by ten parking spaces located along the alley at the back of the site.
Reaching approximately 34 feet in height, the proposed building’s design is reminiscent of three attached townhomes. The buildings are clad in brick and include balconies on the front facade facing N. Long Ave.
To allow for the scope of the project, the developer is seeking to rezone the site from B1-1 to B2-2. Approvals will be needed from the alderman, the Committee on Zoning, and City Council.



