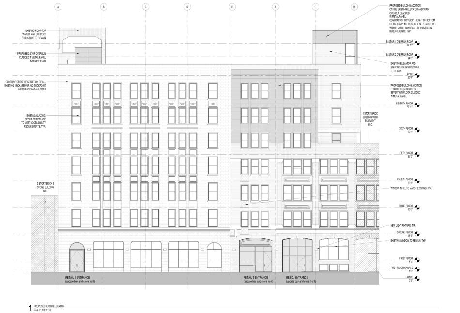
The Zoning Board of Appeals has approved a special use application for the planned office-to-residential conversion of the existing building at 56 E. Superior. Located midblock on E. Superior St between N. Rush St and N. Wabash Ave, the existing office building stands seven stories tall with ground floor retail space and empty office space above. Honore Properties is the developer behind the project.
Designed by Kennedy Mann, the adaptive reuse will convert the seven-story building into 88 residential units, 5,500 square feet of retail space, and 88 bike parking spaces. There will be no car parking as part of the project.
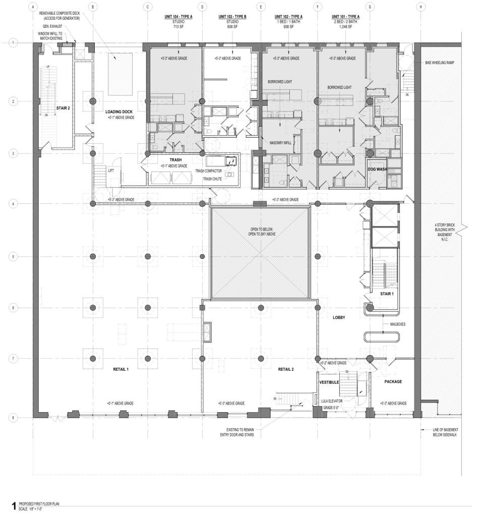
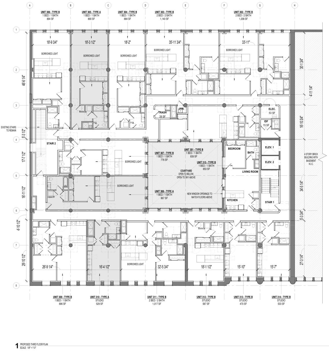
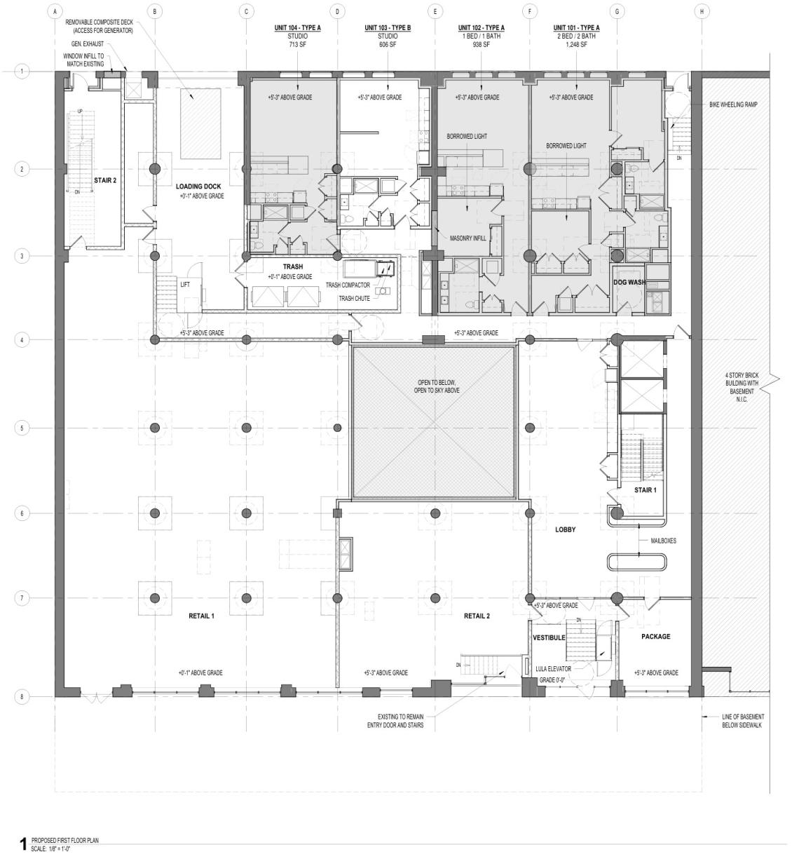
On the ground floor, the building will have retail space fronting E. Superior St with the residential entrance at the east side of the building’s street frontage. Inside, the lobby will have a package room, mailboxes, and a view into the central courtyard of the building. At the back, there will be four apartments facing the alley as well as the loading dock with trash room.
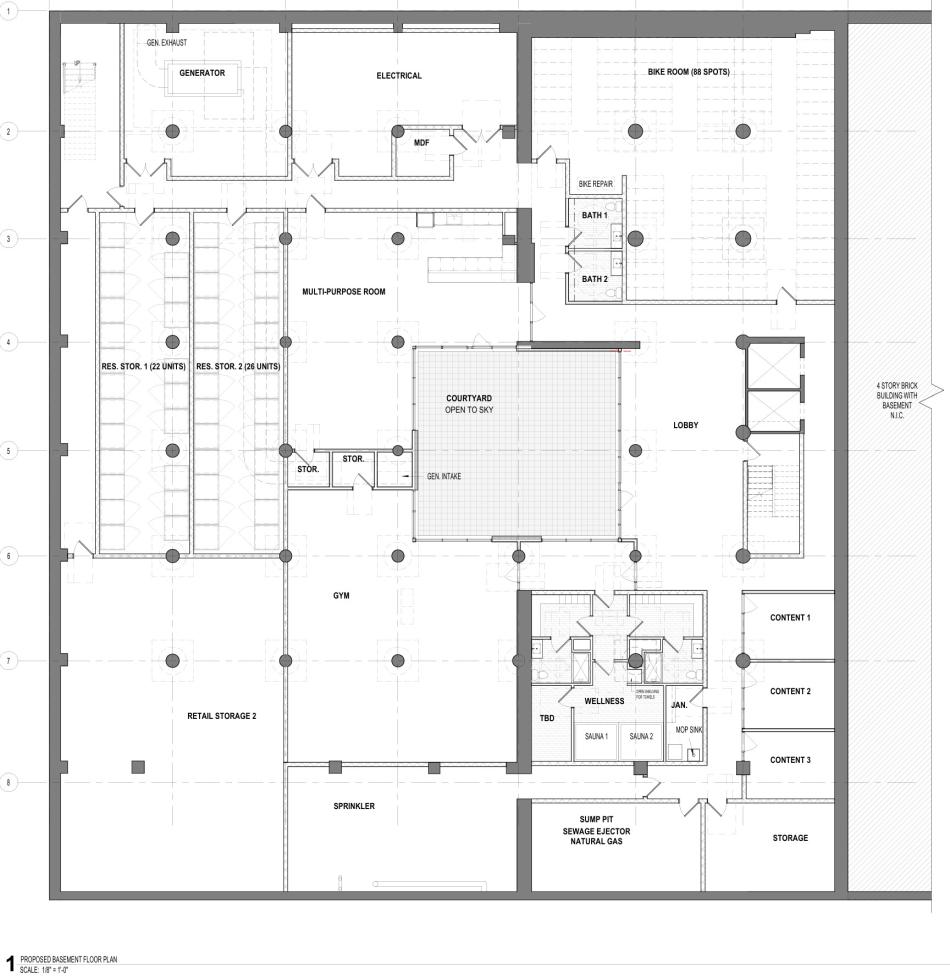
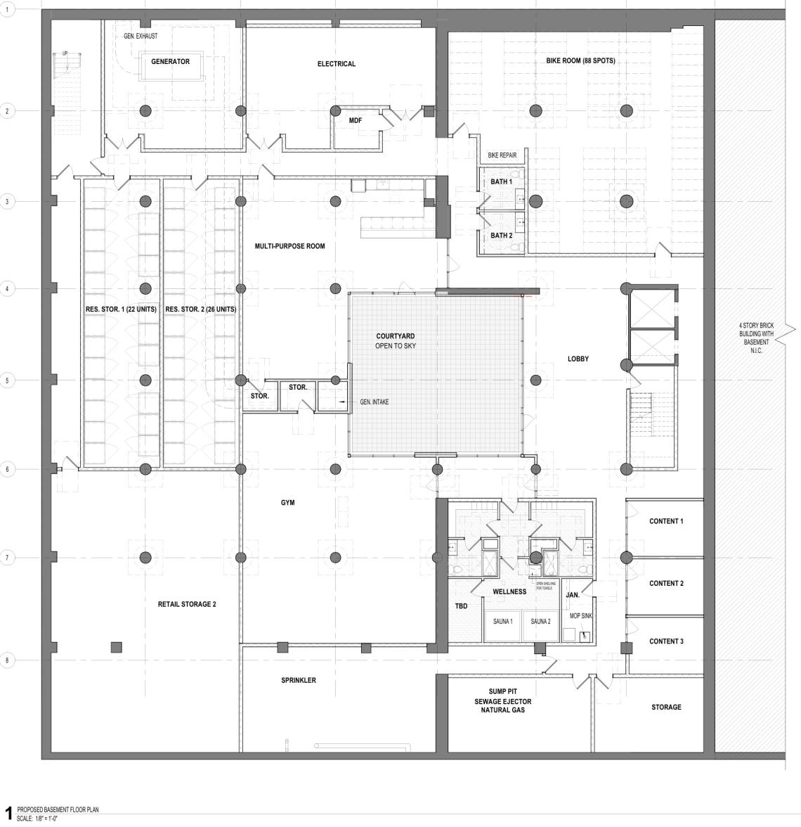
In the basement, residents will have access to an amenity suite that includes a fitness center with saunas, a multipurpose room, and the central courtyard accessible from the basement level as outdoor space. Bike parking as well as resident storage will also be included. The remainder of the basement will have mechanical space.
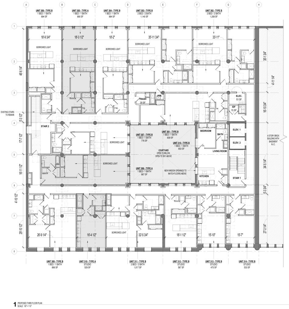
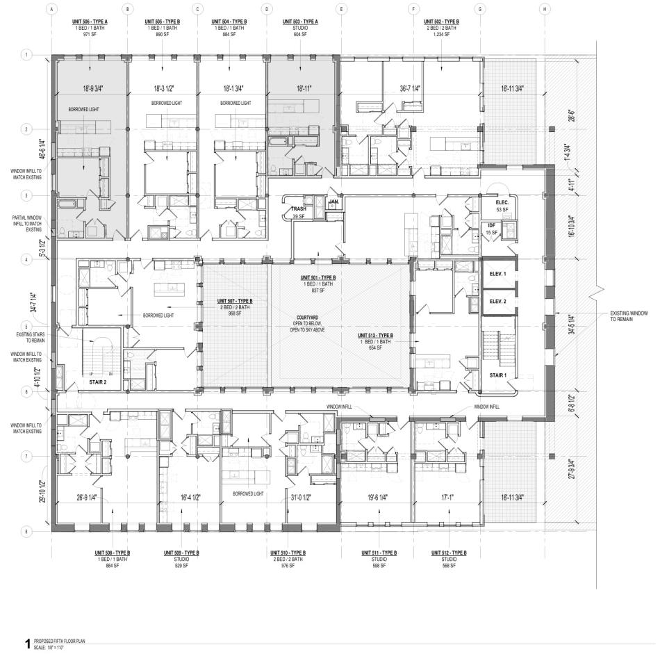
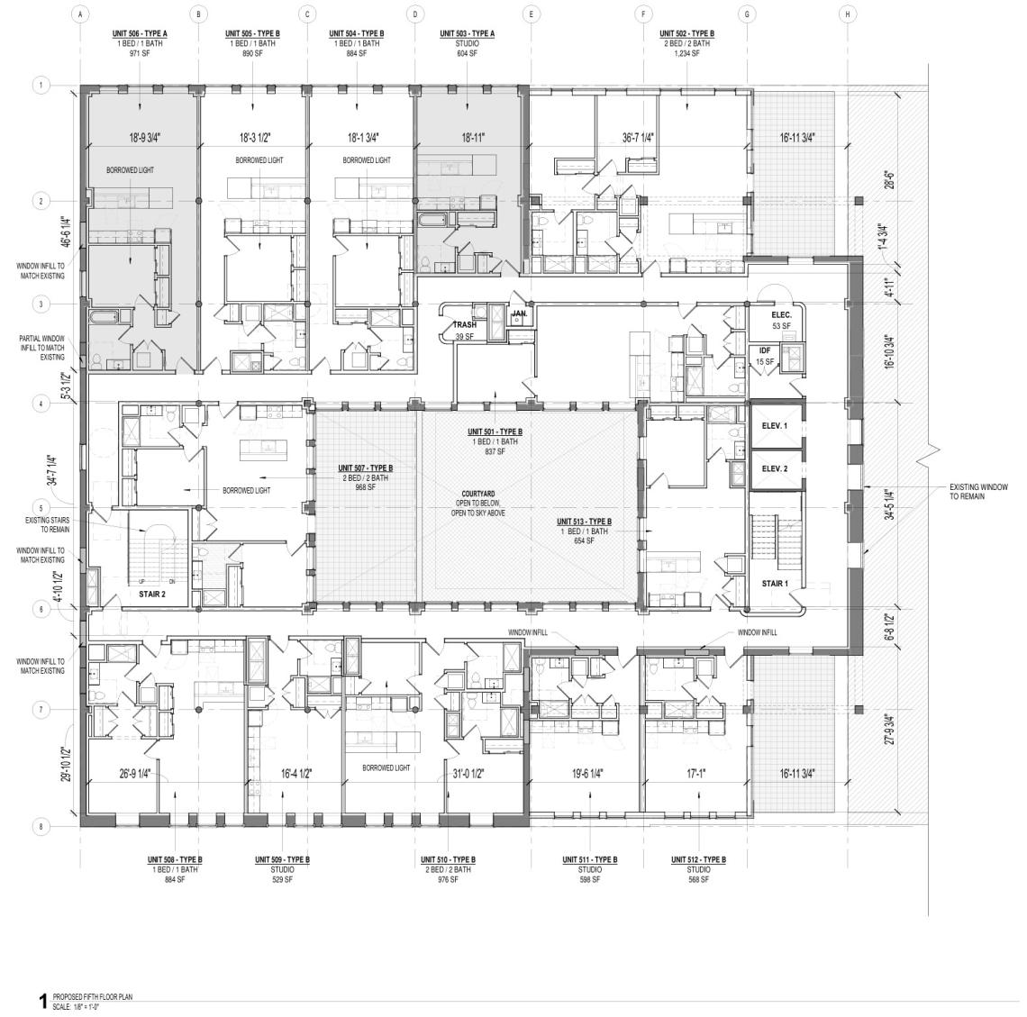
In the upper floors of the building, floors two through seven will house the remaining 84 residential units. With each floor responding to unique elements within the building, the floors each have 13-15 units per floor. The total 88 units feature a mix of 29 studios, 40 one-beds, and 19 two-beds.
Standing approximately 100 feet in height, the redevelopment of the building will work within the existing envelope of the building for the most part. At the southeast and northeast corners of the building, two three-story additions clad in metal paneling will add space on the fifth through seventh floors. On top of the building, residents will have access to a rooftop deck.
To allow for the project to move forward, the developer was seeking a special use application to allow for residential use below the second floor for the four planned apartments at the back of the ground floor. With approval of that from the Zoning Board of Appeals, the project can move forward with permitting and construction. A timeline for construction has not been announced.






