The Zoning Board of Appeals has approved a series of variances and special uses for a proposed condo hotel development at 2000 S. Clark. Planned by HMC Realty, the project site is a vacant lot at the northwest corner of S. Clark St and S. Archer Ave.
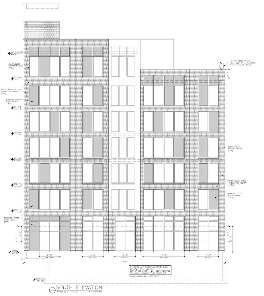
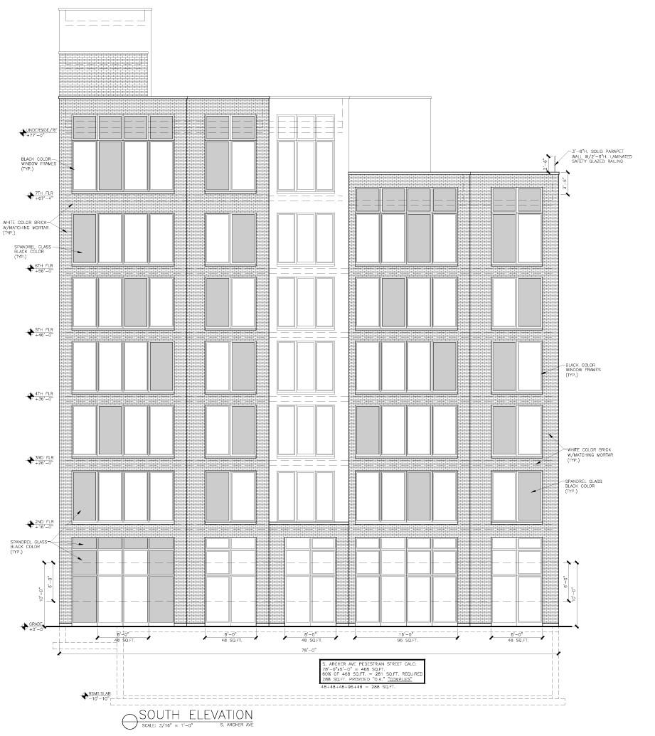
Designed by Hanna Architects, the seven-story building will stand 77 feet tall and feature 102 hotel keys with ground-floor restaurant and rooftop bar with outdoor deck. The project will have zero parking spaces and four bike parking spaces.
According to the development’s website, the condo hotel offers an affordable and modern accommodation option that is targeted towards young travelers, professionals, and investors. The condo hotel model allows buyers to purchase individual hotel rooms as condominium units and gives them the flexibility to opt into hotel management services or use the unit for a second home, vacation property, or corporate stay.
The building’s ground floor will have the restaurant facing S. Archer Ave while the hotel entrance will be accessed via a covered drop off fronting S. Clark St. The hotel lobby will have the front desk and waiting space. Hotel support spaces will be located in the basement.
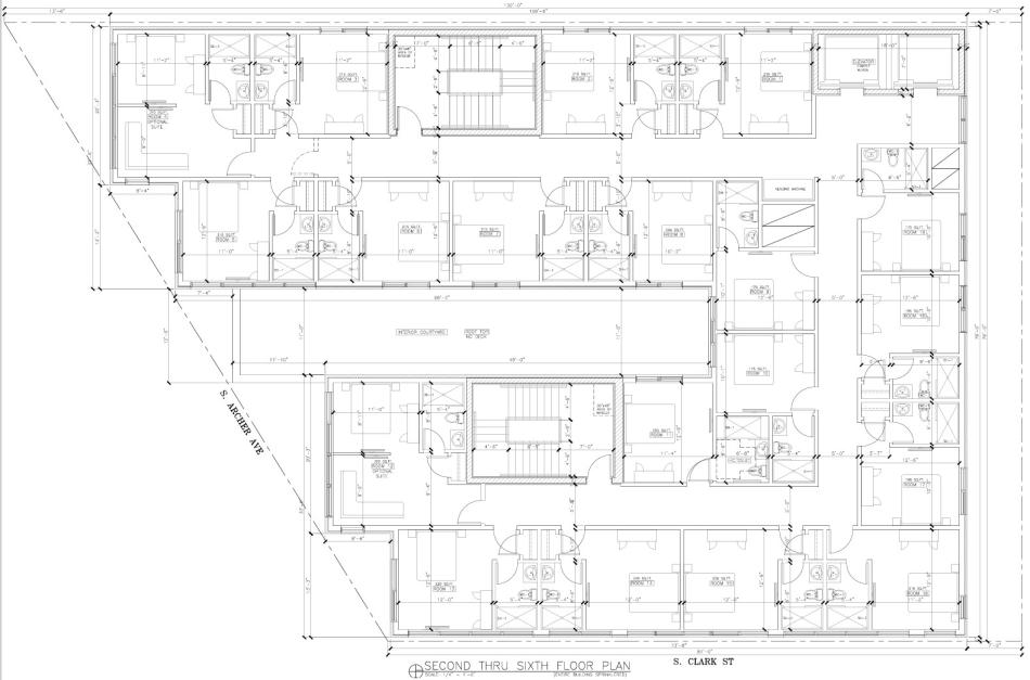
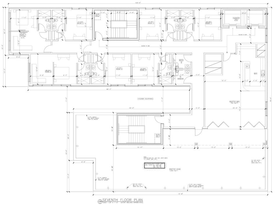
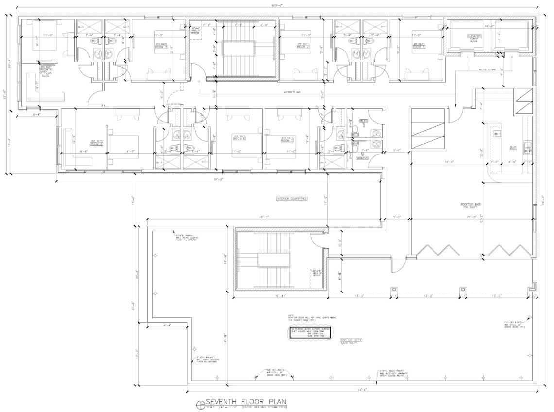
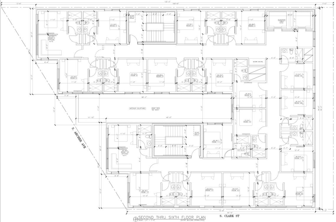
On the upper floors, typical hotel floors will have 19 rooms each organized within the U-shaped plan. The seventh floor will have seven hotel rooms in the west wing and the rooftop bar with outdoor deck on the east wing overlooking S. Clark St.
To allow for the project, the developer is seeking a special use to establish the hotel on the property as well as a special use to establish a rooftop bar and deck on top of the building.
The project requested eight variations for the project, including a variation to increase the building height from the maximum 70 feet to 77 feet; a variation to increase the 5.0 floor area ratio by 10% for a total of 45,837 square feet; a variation to eliminate the required loading berth; a variation to reduce the required 60% transparency from the required 280.8 square feet to 240 square feet; a variation to allow the proposed driveway and vehicle access; a variation to allow the proposed building location; a variation to reduce the required parking spaces from ten to zero; and a variation to reduce the bicycle parking spaces from the required ten to four.
With approval from the Zoning Board of Appeals secured, the project can move forward with permitting and construction. A timeline for construction has not been announced.







