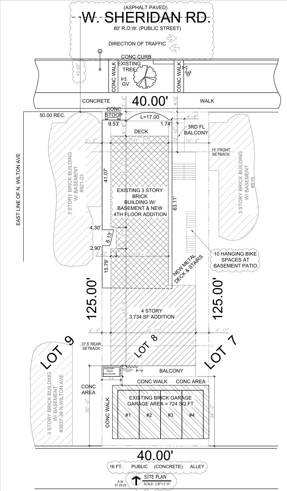
The Zoning Board of Appeals has approved a set of variances for a residential development at 919 W. Sheridan. Planned by Base 3 Development, the project site is located midblock along W. Sheridan Rd between N. Fremont St and N. Wilton Ave. The project will retain the existing 122-year-old three-story building that occupies the site and incorporate it into the development.
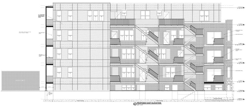
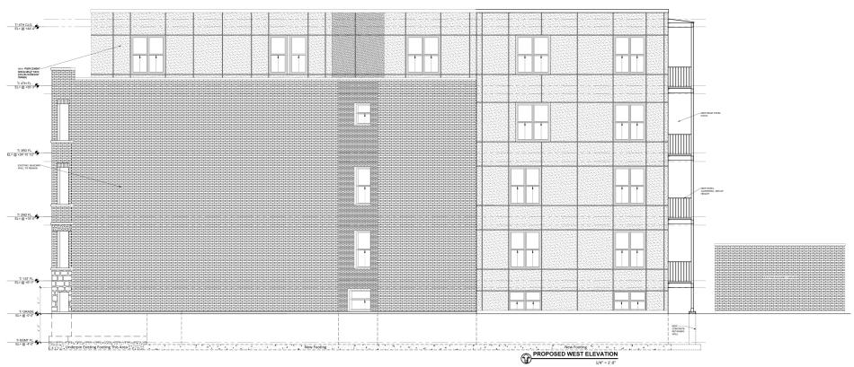
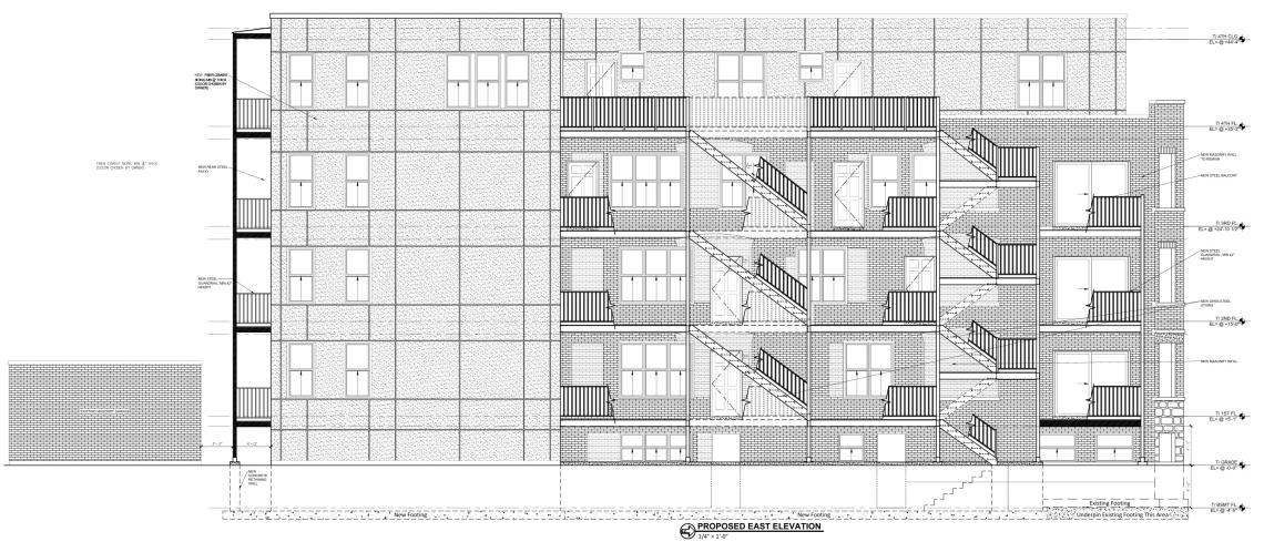
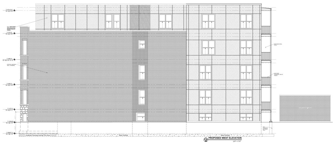
Designed by Gansari & Associates, the project will rehab the existing three-story building and add a four-story rear addition with fourth-floor addition on top of the existing building. The development will redesign the unit layouts on the interior to right-size the units and better utilize the space. The project increases the unit count from three to 12 residential units. Four parking spaces will be located in the garage along the alley and 10 bike parking spaces will be located on the basement patio.
The project will have three units per floor with the top two floors having three duplex units. With a total of 12 units, the project’s unit mix will include 3 one-beds, 7 two-beds, and two three-beds. The front and rear units within the building will all have private decks and all of the units will be accessible via a shared outdoor deck and staircase on the east side of the building.
To allow for the project, the developer is seeking a zoning variation to reduce the rear setback from the required 37.5 feet to 30 feet and the combined side yard setback from 8 feet to 4.93 feet, as well as a variation to reduce the rear yard open space from the required 324 square feet to zero.
With ZBA approval secured, the project can continue with permitting and construction. Permits have already been filed for the project and are undergoing the review process.




