The Zoning Board of Appeals has approved a special use application for a residential development at 2606 S. Peoria. Planned by Henry Tam, the project site is a long, narrow trapezoidal site on S. Peoria St bounded by the Stevenson Expressway to the north and a public alley to the south.
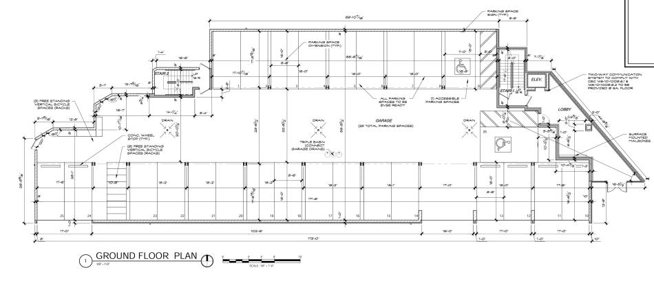
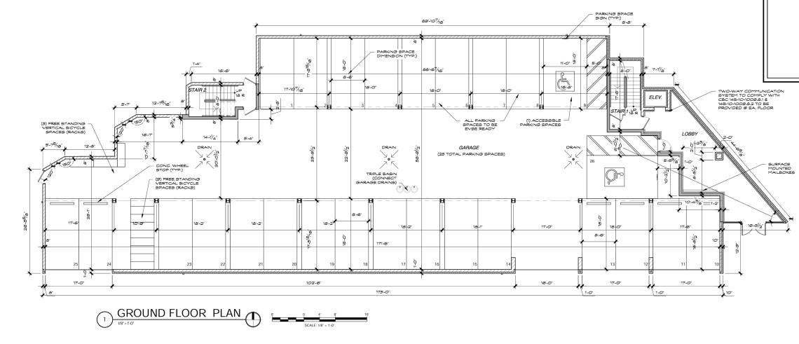
Designed by Vari Architects, the new construction building will stand five stories with 29 residential units, 25 parking spaces, and 12 bike parking spaces. The building will take shape as a rectangular building with setbacks and indents to follow the trapezoidal shape of the site.
On the ground floor, the residential lobby will occupy the east end of the building with the entrance near the alley. The remainder of the ground floor will be a parking garage with 25 parking spaces and 12 bike parking spaces accessed from the alley.
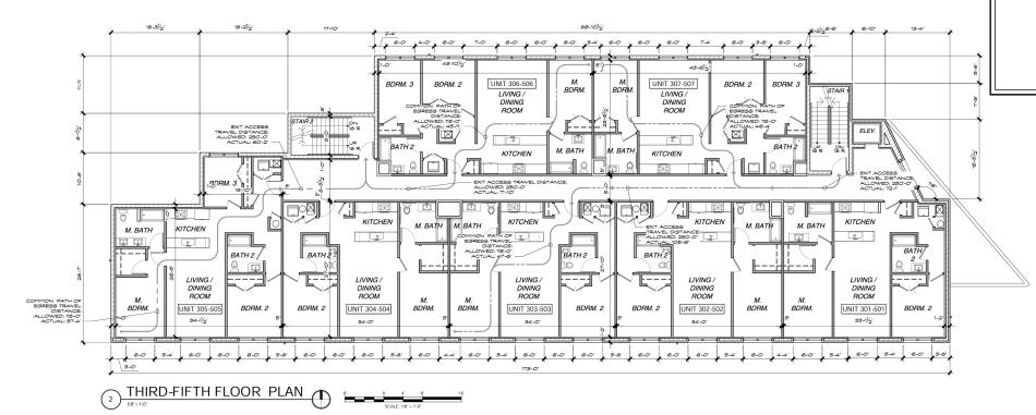
On the upper floors, the 29 planned residential units will be split amongst the four floors with eight units on the second floor and seven units per floor on the third through fifth floors. The overall unit mix will include 2 one-beds, 17 two-beds, and 10 three-beds.
The developer sought approval for a special use application for the project to allow its residential use within 660 feet of an existing warehousing and freight movement use. With ZBA approval secured, the developer can move forward with permitting and construction. A timeline for construction has not been announced.




