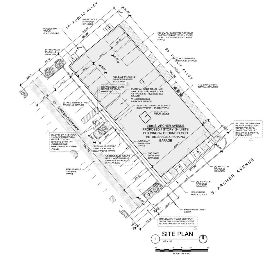
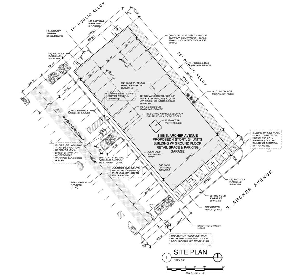
The Zoning Board of Appeals has approved a variation for a mixed-use development at 3188 S. Archer. Planned by SkyRiver Archer Development LLC, the project site is located near the intersection of S. Archer Ave and S. Paulina St. The vacant site has been used previously as a used car parts junkyard.
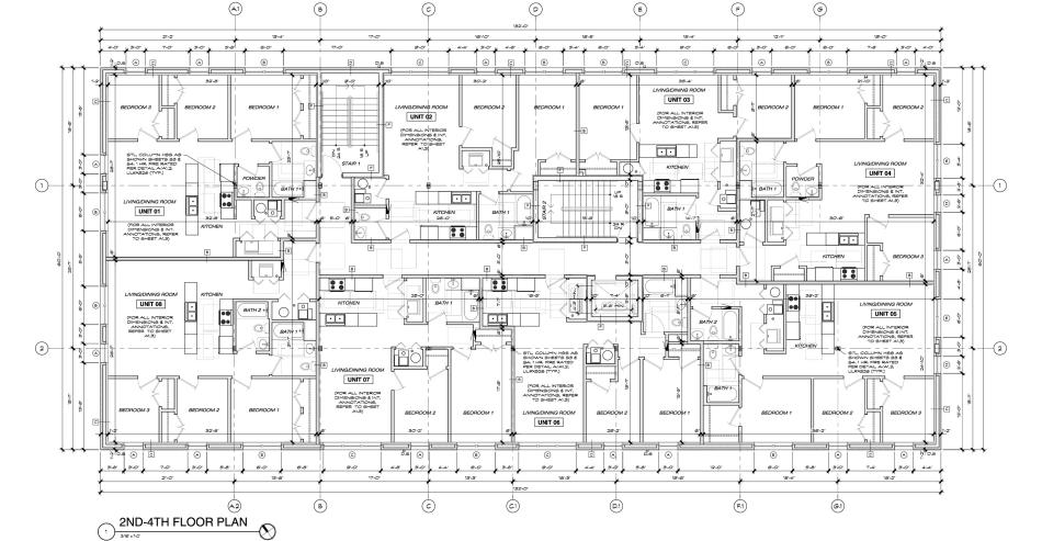
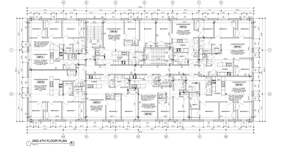
Designed by Vari Architects, the planned four-story building will have retail space on the ground floor with 24 residential units on the floors above. Set to stand 48 feet tall, the building will be clad in brick with vertical stripes of windows and aluminum panels.
The project’s ground floor has retail space facing S. Archer Ave with the residential entry on the side of the building facing the surface parking planned between the new building and the adjacent building planned by the developer. The building itself will have 13 parking spaces in an interior garage accessed from the alley and the surface parking lot between buildings will have 30 shared parking spaces.
The upper floors of the building will each have eight residential units for a total of 24 apartments. The project’s unit mix will include 12 two-beds and 12 three-beds.
To allow for the scope of the project, the developer was seeking a variation to reduce the rear setback from 30 feet down to 10 feet on floors with dwelling units. With ZBA approval secured, the developer can move forward with permitting and construction. Permits have been filed and are awaiting issuance.




