The Zoning Board of Appeals has approved variations for a residential development at 3651 N. Wilton. Planned by 3651 N. Wilton LLC, the project site is an infill site near the intersection of N. Wilton Ave and W. Waveland Ave. The site is currently occupied by a three-story greystone building with an adjoining side yard.
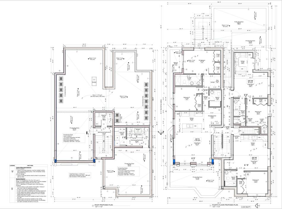
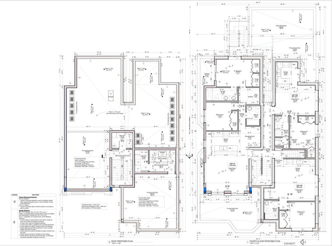
With Cruz Designs and Consultants serving as the architect, the redevelopment plans to retain the more than 100-year-old greystone building on the site and add a four-story addition in the open side yard of the property. The addition will stand approximately 55 feet in height sited along the south side of the existing building and wrapping up on top of it on the fourth floor.
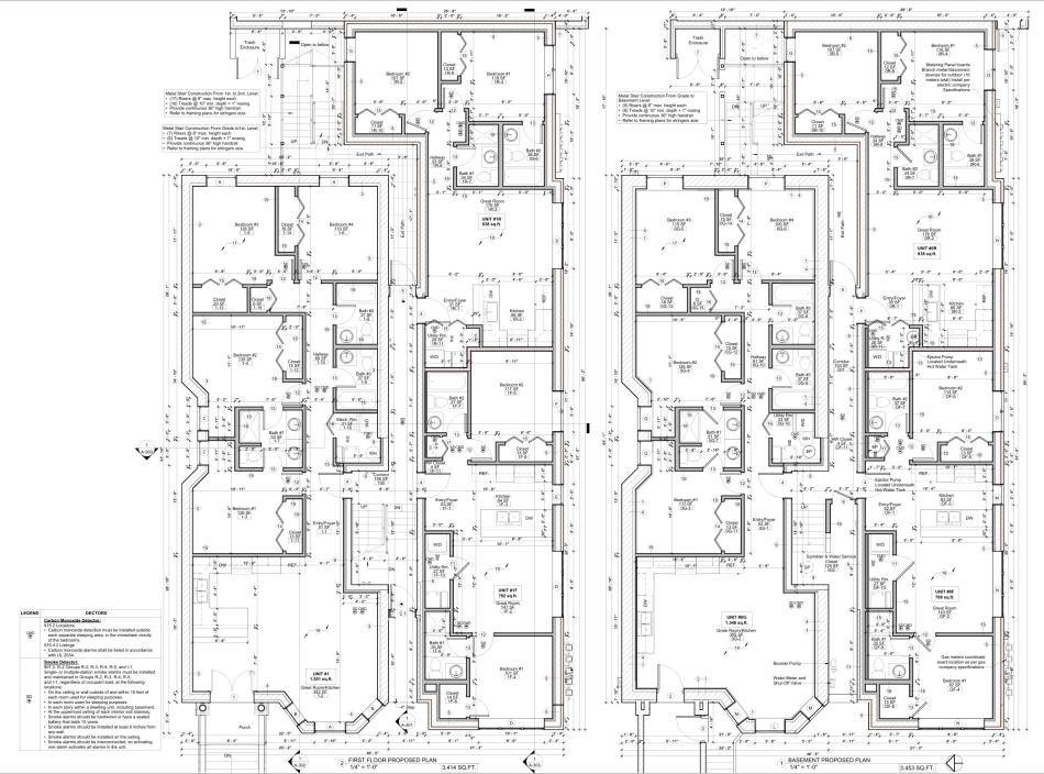
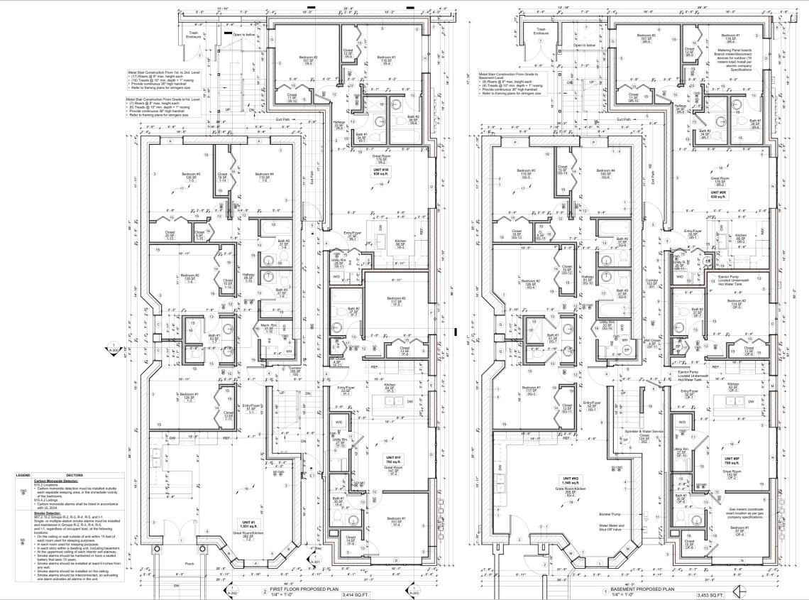
With a total of 15 residential units, the redevelopment plans three units per floor, with two on the fourth floor. The basement and first floors will each accommodate a four-bedroom unit within the footprint of the existing building and two two-bedroom units within the addition's footprint. The second and third floors will also have four-bedroom units within the existing building footprint, but the addition will have one three-bedroom unit and one one-bedroom unit.
The fourth floor of the addition will have a two-bed unit above the existing building with a private rooftop deck and two one-bedroom units within the new addition footprint on the south side of the building. The front one-bedroom unit will also have its own private roof deck.
Residents in the building will have access to five car parking spaces in a garage along the alley and 16 bike parking spaces located behind the main building.
To allow for the scope of the development, the developer is seeking a variation to reduce the on-site required parking from fifteen spaces to five spaces; a variation to relocate the 540 square feet of rear yard open space to the garage roof deck, a variation to exceed the 2.0 floor area ratio by 733 square feet, representing an amount not to exceed 15% of the floor area in existence for 50 years; and a variation to reduce the north side setback from the required 4 feet to zero, combined side setback from 10 feet to 3 feet, and the rear setback from 36.06 feet to 22 feet.
With ZBA approval of the variations secured, the project can move forward with permitting and construction. A permit for the construction has already been filed but a timeline for the development has not been announced.







