The Zoning Board of Appeals has approved a set of variations for a residential development at 4147 N. Western. Planned by 4147 LLC, the project site is a midblock property between W. Belle Plaine Ave and W. Berteau Ave. The property is made up of two lots, one of which is vacant and the other is currently occupied by a two-story residential structure.
Designed by MC & Associates LLC, the proposed development would take shape as a five-story building standing approximately 60 feet tall. The project will deliver eight residential units, eight parking spaces, and eight bike parking spaces.
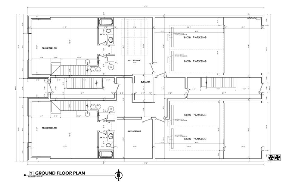
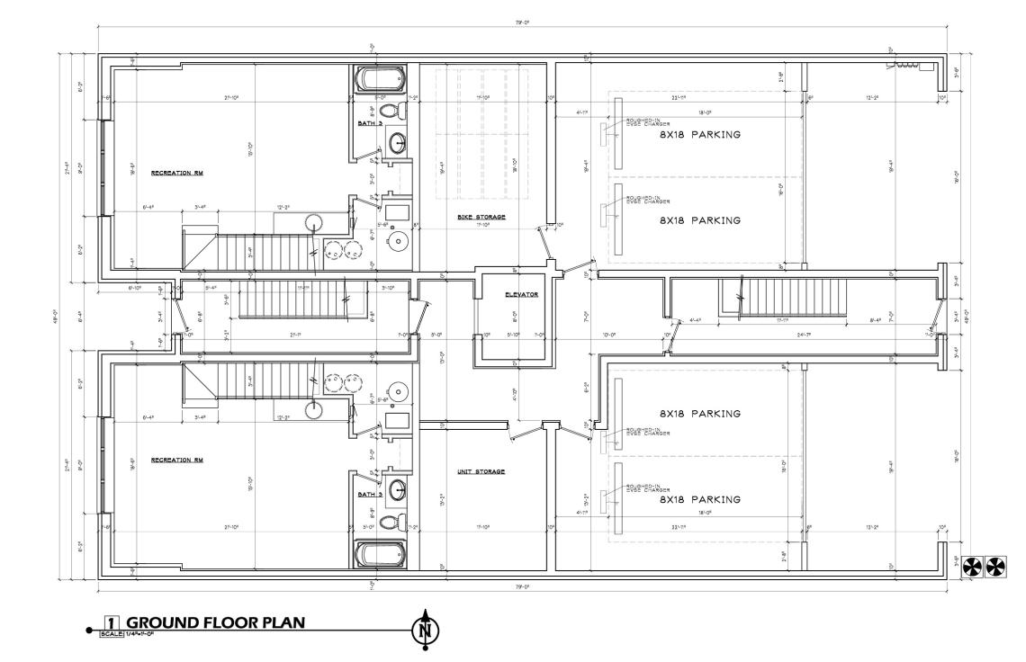
On the ground floor, the residential entry will be at the center of the street frontage, flanked by duplex residential units that connect up to the second floor. The back of the ground floor will have the bike parking as well as four car parking spaces in an interior garage. The final four parking spaces will be outside along the alley at the back of the site.
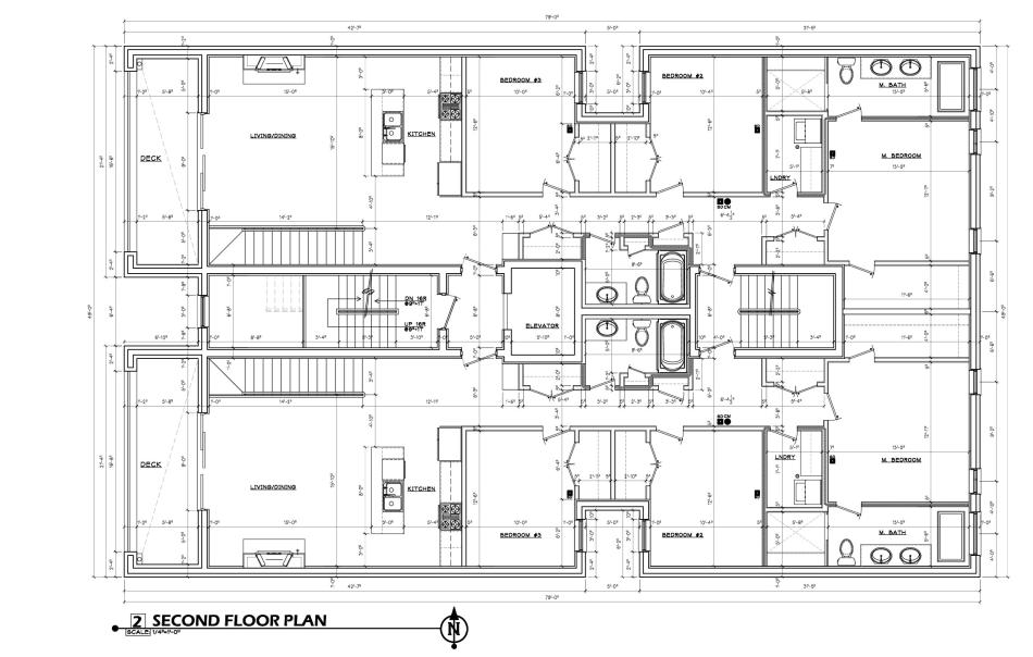
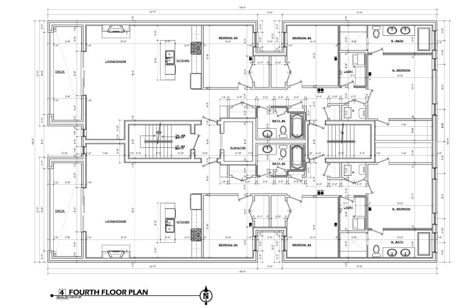
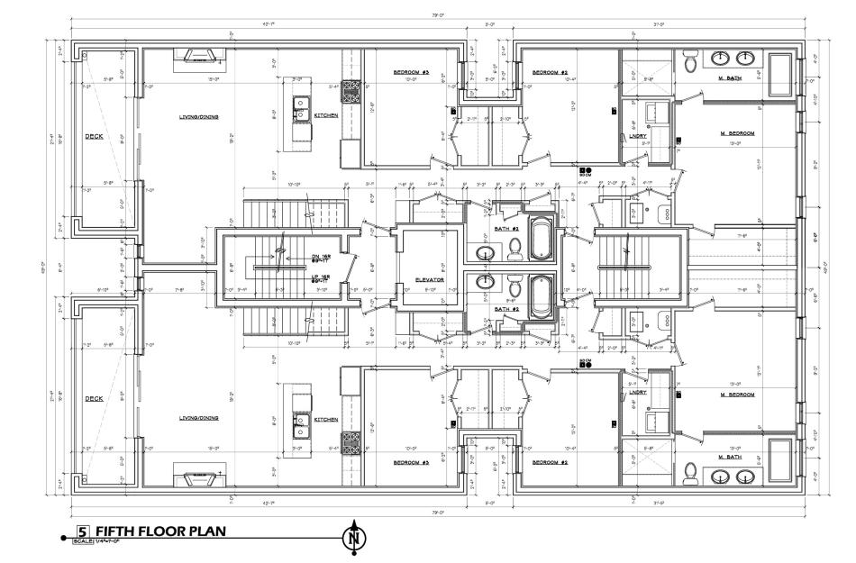
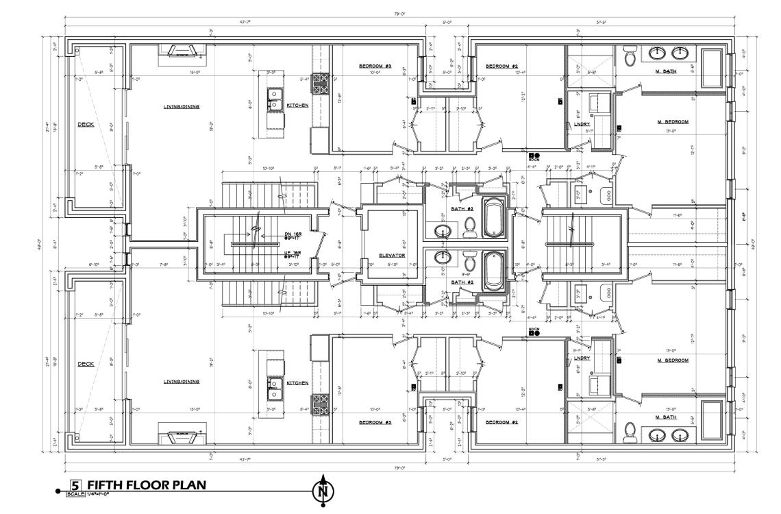
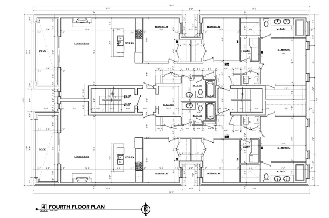
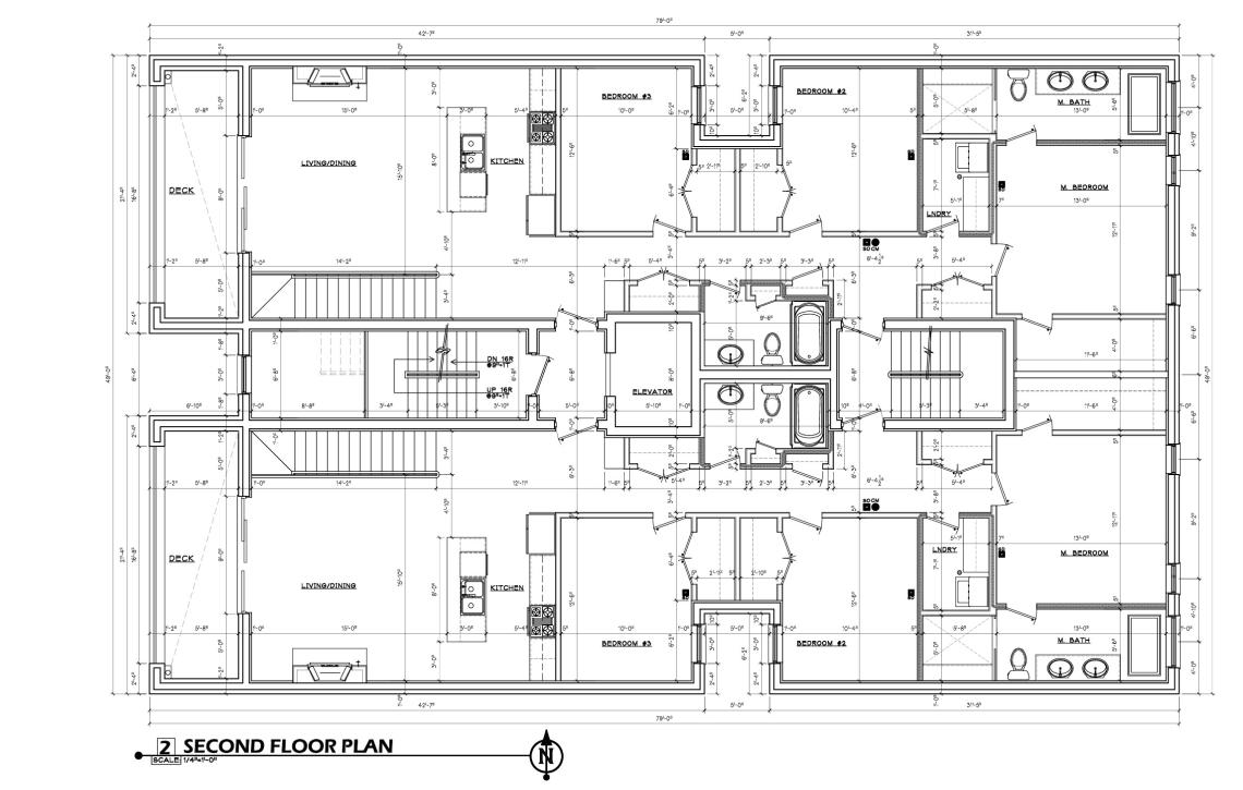
With a total of eight units, two three-bedroom duplex units will be located on the first and second floors. The third and fourth floors will have four more three-bedroom units, and the fifth floor will have two three-bedroom units that have private access to rooftop decks. Every unit will have a private terrace facing the street.
To allow for the scope of the project, the developer has sought approvals from the ZBA for a special use to establish residential use below the second floor and for a variation to reduce the rear setback from 30 feet to 27.12 feet on floors containing dwelling units. With ZBA approval secured, the developer can move forward with permitting and construction.






