A zoning application has been filed for a residential development proposed at 1527 W. Edgewater. Planned by 1527EDGEWATER LLC, the project site is a midblock property near the intersection of W. Edgewater Ave and N. Clark with an existing former church on the site to be demolished.
Designed by MC & Associates, the new development would take shape as a three-story residential building. The building is planned to have four residential units with four parking spaces and four bike parking spaces.
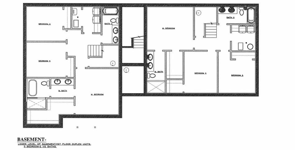
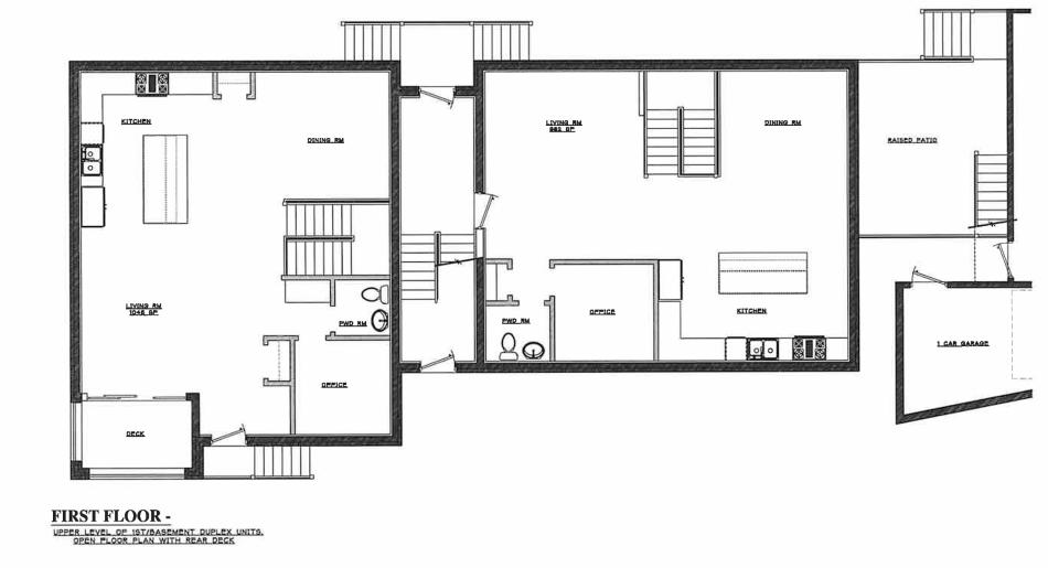
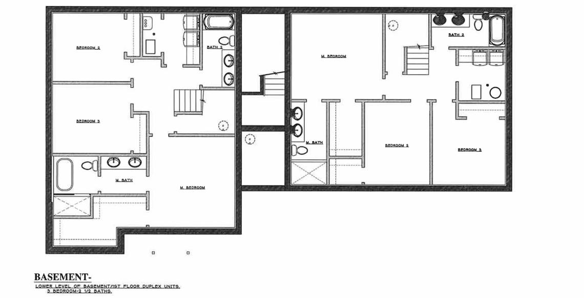
The building will have two three-bedroom duplex down units on the first floor and basement, while the second and third floors will also have two three-bedroom duplex homes.
To allow for the scope of the project, the developer is seeking to rezone the site from RS-3 to RM-4.5. Approvals will be needed from the alderwoman, the Committee on Zoning, and City Council.



