A zoning application has been filed for a residential development at 2343 W. Chicago. Planned by Panoptic Group, the project site is a midblock site located near the intersection of N. Western Ave and W. Chicago Ave. The one-story building currently occupying the site will be demolished to make way for the project.
Designed by Hanna Architects, the proposed five-story residential building will stand 61 feet tall, and feature six condominium units served by six parking spaces. A condo resident amenity space will also be included.
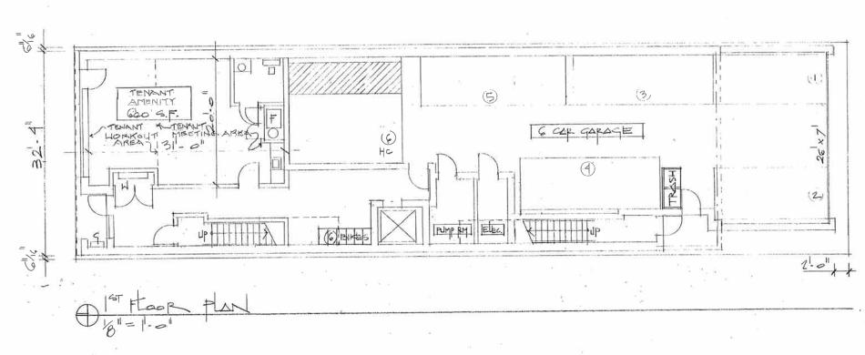
The building’s ground floor will front the street with the resident amenity space and the residential entry. The remainder of the ground floor will be made up of an interior parking garage providing six parking spaces.
On the upper floors, the project will include six condominium units. The second and third floors will have two two-bedroom units each. The fourth and fifth floors will have two three-bedroom duplex condos that include access to private rooftop decks.
To allow for the scope of the project, the developer is seeking to rezone from C1-3 to C1-5. Approvals will be needed from the local alderman, Committee on Zoning, and City Council. A timeline for the project has not been announced.




