Image December 12, 2025 City Council approves mixed-use development at 1200 W. Carroll The 29-story tower will replace plans for an office tower by Sterling Bay
Image November 21, 2025 Plan Commission approves mixed-use development at 1200 W. Carroll The 29-story tower will replace plans for an office tower by Sterling Bay
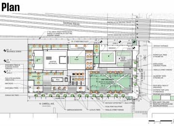
Image October 21, 2025 Mixed-use development at 1200 W. Carroll presented to community The 29-story tower will replace plans for an office tower by Sterling Bay