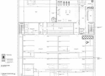
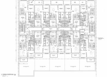
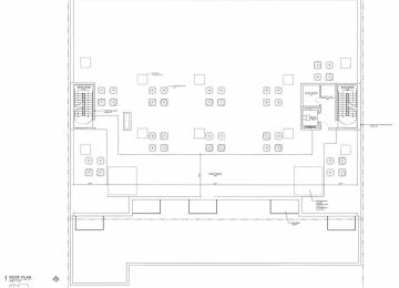
Image March 27, 2026 Demo permits issued for development at 1215 W. Belmont The five-story building will have 40 apartments and retail space
Image October 17, 2025 City Council approves mixed-use development at 1215 W. Belmont The five-story building will have 40 apartments and ground-floor retail space
Image July 17, 2025 Mixed-use development proposed at 1215 W. Belmont The five-story building would have 40 apartments and retail space