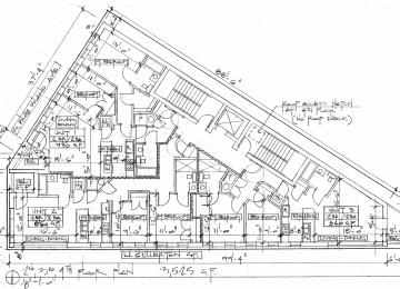
2006 S. Blue Island

Approved Last updated 12/3/2025
Project Uses Apartments, Retail, Parking
# of Apartments 9
Floors (Above Ground) 4
Podium No
Construction Type Type 3, 4 & 5

Companies

Developer Fox Pilsen 4 LLC
Architect Hanna Architects
You have X free articles remaining this month.
Subscribe today!
Subscribe