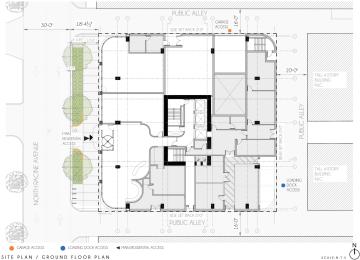
Image February 23, 2026 Plan Commission approves mixed-use development at 215 N. Racine The 30-story tower would have 347 apartments with retail
Image February 9, 2026 Plan Commission will review development at 215 N. Racine The 30-story tower would have 347 apartments with retail
Image January 14, 2026 Developer adds green space for development at 215 N. Racine The new green space will be at a separate site from the proposed tower