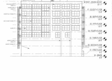
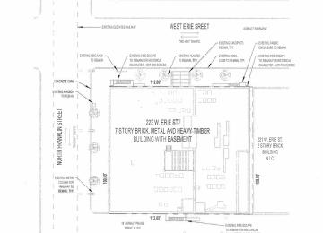
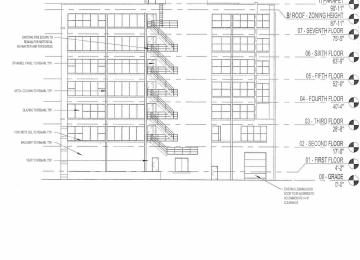
Image April 8, 2026 Reno permit issued for residential conversion at 223 W. Erie The upper six floors will be converted into 66 residential units
Image January 17, 2026 Interior demo permit issued for residential conversion at 223 W. Erie The upper six floors will be converted into 66 residential units
Image October 9, 2025 City Council approves residential conversion at 223 W. Erie The upper six floors would be converted into 66 apartments