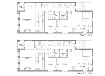
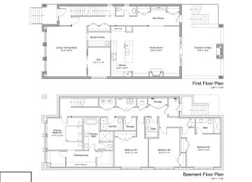
Image February 21, 2026 Full building permit issued for development at 3039 N. Kenmore The new three-story building will have three units
Image November 2, 2025 City Council approves residential development at 3039 N. Kenmore The new three-story building will have three units
Image September 26, 2025 Zoning application filed for development at 3039 N. Kenmore The new three-story building would have three units