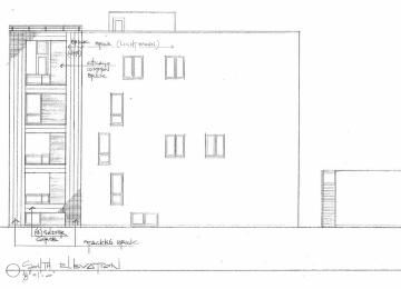
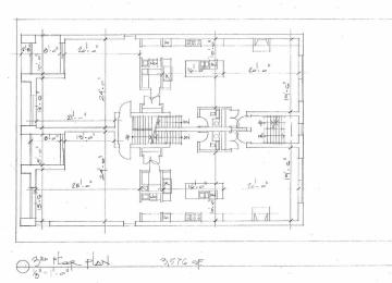
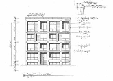
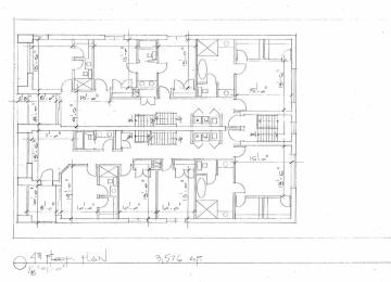
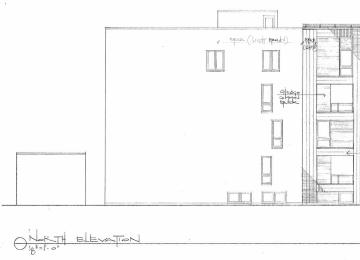
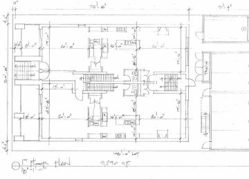
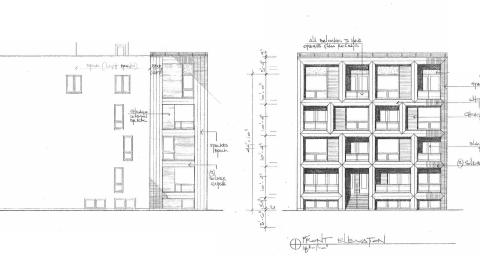
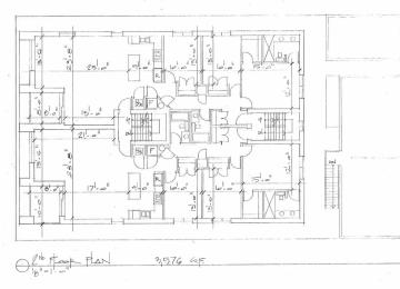
3045 N. Western

Approved Last updated 11/18/2025
Project Uses Apartments, Parking
# of Apartments 6
Floors (Above Ground) 4
Podium No
Height (ft) 51
Construction Type Type 3, 4 & 5

Companies

Developer Marat Liavitskyi
Architect Hanna Architects
You have X free articles remaining this month.
Subscribe today!
Subscribe