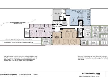
Image November 5, 2025 Caisson permit issued for mixed-use development at 310 W. Huron The nine-story building will have 149 apartments and retail
Image September 29, 2025 ZBA approves variations for mixed-use development at 310 W. Huron The nine-story building would have 149 apartments and retail
Image September 10, 2025 ZBA will review mixed-use development at 310 W. Huron The nine-story building would have 149 apartments and retail