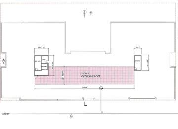
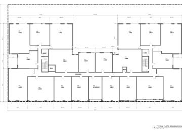
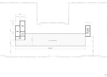
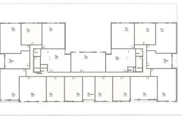
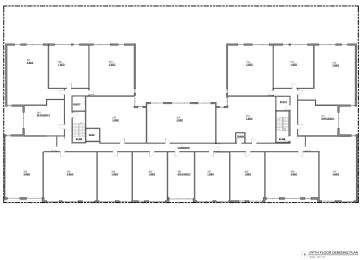
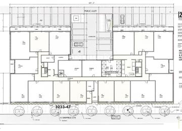
Image February 9, 2026 Ald. Lawson announces support for development at 3233 N. Sheffield The project will proceed to seeking zoning approval for the 99-unit project
Image December 15, 2025 Zoning application filed for development at 3233 N. Sheffield The five-story building would have 99 residential units
Image August 5, 2025 Residential development proposed at 3233 N. Sheffield The five-story building would have 92 residential units