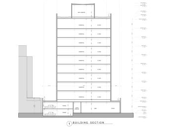
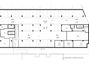
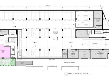
Image February 26, 2026 Plan Commission approves development at 3611 N. Halsted The 12-story building will have 188 apartments and a cafe
Image February 10, 2026 Plan Commission will review development at 3611 N. Halsted The 12-story building would have 188 apartments and a cafe
Image December 29, 2025 Zoning application filed for development at 3611 N. Halsted The 12-story building would have 188 apartments and a cafe