Image October 13, 2025 City Council approves hotel tower at 6402 S. Stony Island The 26-story tower would stand 316 feet tall with 250 hotel keys
Image August 25, 2025 Plan Commission approves hotel tower at 6402 S. Stony Island The 26-story tower would stand 316 feet tall with 250 hotel keys
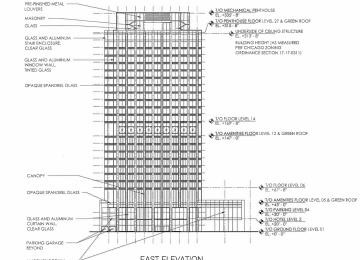
Image March 18, 2025 Hotel tower development proposed at 6402 S. Stony Island The 28-story tower would stand 336 feet tall with 250 hotel keys