Image
January 16, 2026
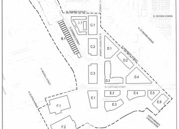
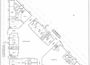
Plan Commission approves $3 billion Foundry Park development
The project plans over 3,700 units, a hotel, office space, retail, and open space
| Project Uses | Apartments, Townhomes, Single Family Homes, Retail, Office, Hotel, Parking, Park/Greenspace |
| # of Apartments | 3200 |
| Floors (Above Ground) | 38 |
| Podium | No |
| Height (ft) | 520 |
| Construction Type | Type 1 & 2 |
| Developer |
JDL Development
Kayne Anderson Real Estate |
| Architect | Hartshorne Plunkard Architecture |
| Landscape Design/Architect | Nudge Design |