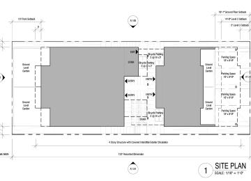
Quarry House 1845

Proposed Last updated 12/3/2025
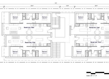
Project Uses Apartments, Parking
# of Apartments 16
Floors (Above Ground) 5
Podium No
Construction Type Type 3, 4 & 5

Companies

Developer Ellaree Development Corp
Architect Krueck Sexton Partners
You have X free articles remaining this month.
Subscribe today!
Subscribe