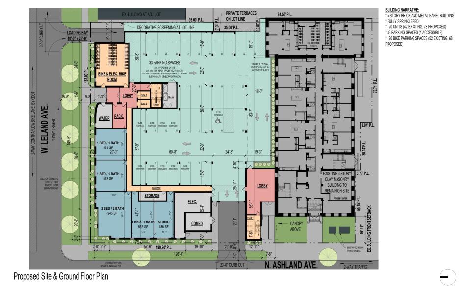
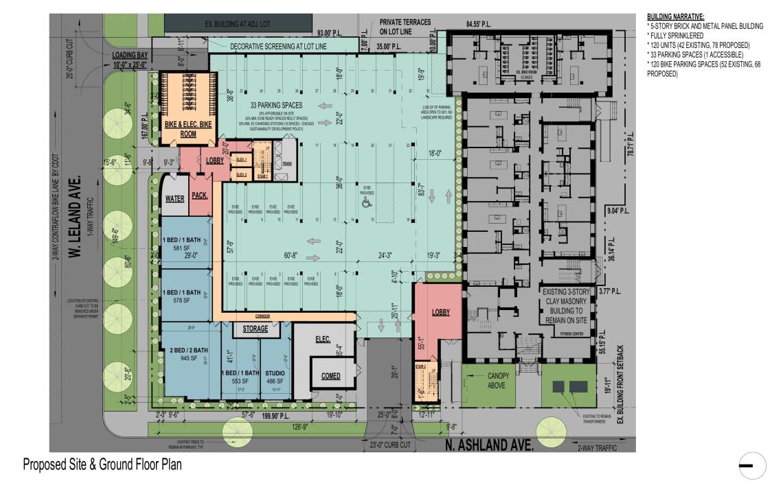
Alderman Matt Martin of the 47th Ward has announced his support for a proposed residential development at 4641 N. Ashland. Planned by Honore Properties, the project site is a current surface parking lot at the corner of N. Ashland Ave and W. Leland Ave adjacent to the former Our Lady of Lourdes School which is currently being converted into 42 apartments.
Designed by Kennedy Mann, the five-story metal and brick building topping out at 60 feet would include 78 residential units. The proposed unit mix includes 5 studios, 60 one-beds, 9 two-beds, and 4 three-beds. 16 of these units would be affordable, in accordance with the ARO requirements.
On the ground floor, two residential entries will be included with one on N. Ashland Ave and one on W. Leland Ave, with a bike room for 98 bikes located next to the Leland Ave entry. 33 parking spaces will occupy the interior of the ground floor with access via a curb cut on N. Ashland Ave screened by residential units facing the street frontages.
Revisions to the project include moving the location of the parking entrance from Leland Ave to Ashland Ave to reduce the impact of traffic on pedestrian and cycling safety near the park, adding a dedicated loading zone on Ashland for rideshare and delivery drop-offs, and adding signage inside of the parking lot reminding drivers to look out for pedestrians and children as they exit.
Additionally, according to the alderman’s office, the building’s design has been revised to better complement surrounding buildings, including incorporating more brick, an aesthetically improved facade along Leland Ave, and a step-down from five stories to one story on the north-east side of the building along Leland, which is adjacent to an existing three-story building.
The developer also committed to multiple sustainable features including dark sky lighting, a solar ready roof, and a fully electrified building. In addition, 30% of the onsite parking spaces will have access to EV charging stations, the bike room has been redesigned to accommodate electric and cargo bikes, and 80% of the waste generated through construction will be recycled.
With aldermanic approval secured, the developer can move forward with its ask to rezone the site from RT-4 to B2-3 with a Planned Development designation. It will need approval from the Chicago Plan Commission, the Committee on Zoning, and City Council.





