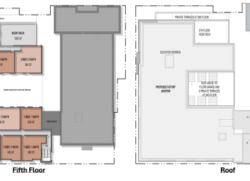
Image November 27, 2025 Plan Commission approves development at 4641 N. Ashland The five-story building will have 78 units and parking
Image October 1, 2025 47th Ward Ald. Martin supports development at 4641 N. Ashland The five-story building would rise next to the Our Lady of Lourdes School conversion
Image June 3, 2024 Residential development proposed at 4641 N. Ashland The six-story building would rise next to the Our Lady of Lourdes School conversion