A zoning application has been filed for an affordable senior housing project at 1606 S. Wolcott. Planned by developer Teo Scorte, the project site is a vacant property bound by freight rail tracks to the north, S. Wolcott Ave to the east, an alley to the south, and an adjacent surface parking lot to the west.
Designed by UrbanWorks, the proposed seven-story building will stand 84 feet tall and take shape as a curved L-shape building that runs parallel to the railroad embankment and bends down towards the alley. The building setback away from the railroad tracks with a green space buffer and surface parking lot to the west. The building wraps around a courtyard space at the corner of the site where the alley meets S. Wolcott Ave. A motor court within the courtyard provides space for drop-offs off of the street.
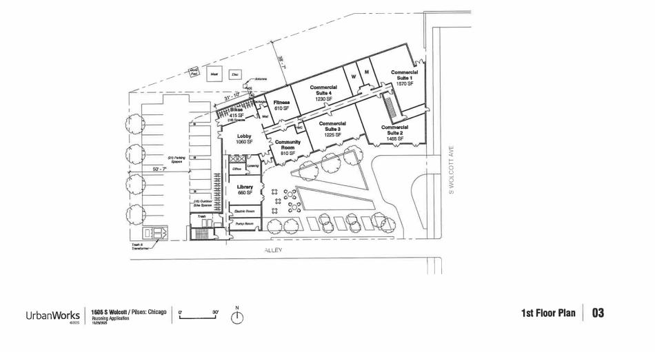
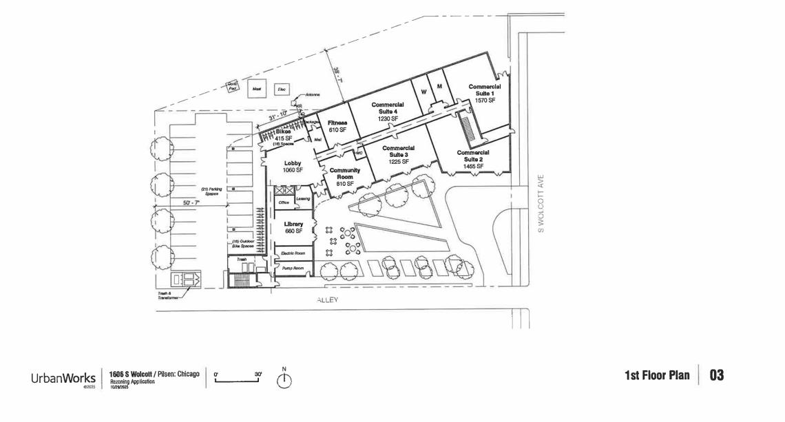
On the ground floor, the east end of the building reaches towards S. Wolcott Ave and will be occupied by 5,480 square feet of commercial space split into four separate suites. The remainder of the ground floor will have the residential lobby, community room, fitness center, and bike room with 32 spaces in the inside corner of the L-shape while the southern leg will have the leasing office and library in addition to some back of house spaces. A surface parking lot to the west of the building will have 21 parking spaces.
With a total of 106 residential units, the upper floors of the building will have 18 units per floor on the typical floors and 16 units on the top floor. With all units set aside as affordable and reserved for seniors, the project will include 94 one-beds and 12 two-beds. All floors will have laundry rooms and the top floor will have a community room and outdoor terrace for residents.
To allow for the scope of the project, the developer is seeking to rezone the site from M2-3 to B2-5. Approvals will be needed from the Committee on Zoning and City Council.




