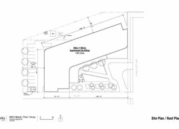
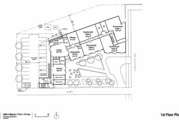
1606 S. Wolcott

Proposed Last updated 11/18/2025
Project Uses Apartments, Retail, Parking
# of Apartments 106
Floors (Above Ground) 7
Podium No
Height (ft) 84
Construction Type Type 1 & 2

Companies

Architect Urbanworks
Developer Teo Scorte
You have X free articles remaining this month.
Subscribe today!
Subscribe