The Chicago City Council has approved a mixed-use development proposed at 4943 N. Damen. Planned by 926 Oak Inc, the project site is located midblock between W. Argyle St and W. Ainslie St. An existing one-story retail building that currently occupies the site will be demolished.
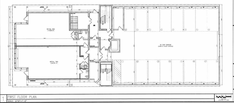
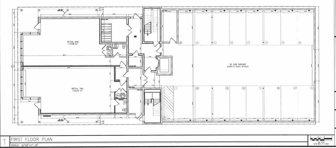
Designed by Red Architects, the proposed development would be a five-story mixed-use building with approximately 2,500 square feet of retail space with 16 residential units above. The building will include 16 car parking spaces and 20 bike parking spaces.
The building’s ground floor will front N. Damen Ave with the building’s retail space while the residential entries will be accessed from the sides of the building behind the retail space. The back of the ground floor will hold the planned 16 car parking spaces accessed from the alley.
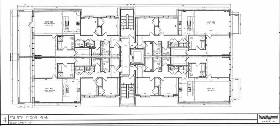
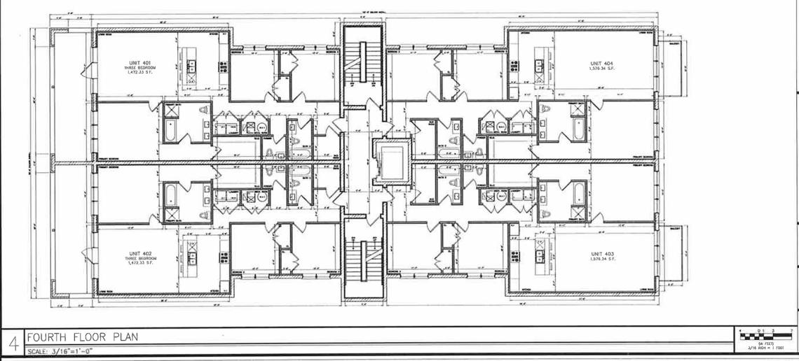
With a total of 16 residential units, the upper four floors will have four units per floor. Set to be sold as condominium units, all units will have three-bedroom layouts and private balconies either facing the street or facing the alley. The building will be topped with a roof deck and green roof. Three of the condos will be designated as affordable.
As part of securing aldermanic approval back in September, the developer agreed to multiple sustainable features including a bike room that can accommodate electric and cargo bikes, EV charging stations for each of the 16 parking spaces, a partial green roof, and bird-safe glass. The building will also be electrification- and solar panel-ready.
With City Council approval secured, the site will be rezoned from B3-2 to B3-3. The developer can now move forward with permitting and construction. Once commenced, construction is expected to take 14-16 months.





