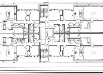
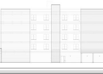
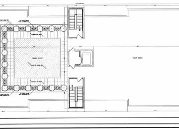
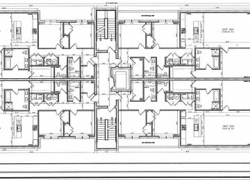
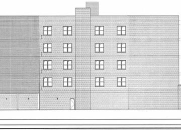
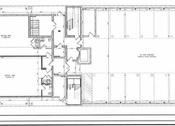
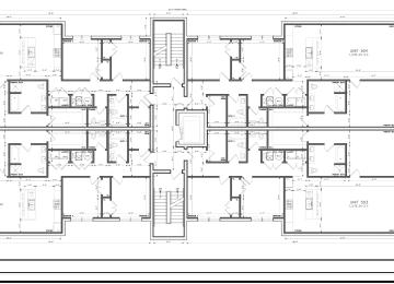
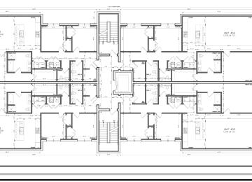
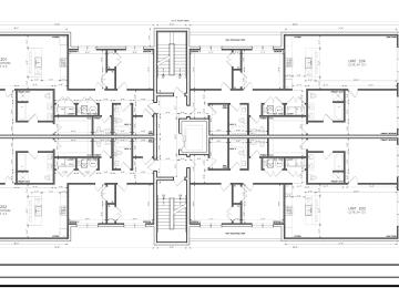
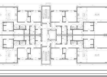
Image February 28, 2026 Demo permit issued to make way for development at 4943 N. Damen The new five-story building will have 16 condos and retail space
Image January 6, 2026 City Council approves mixed-use development at 4943 N. Damen The five-story building will have 16 condos and retail space
Image September 15, 2025 Ald. Martin announces support for development at 4943 N. Damen The five-story building would have 16 condos and retail space