The Chicago City Council has approved a zoning change for a residential development at 2249 W. Belmont. Planned by BM International Builders Inc, the project site is a midblock site along W. Belmont Ave between N. Oakley Ave and N. Leavitt St. The existing two-story residential structure on the site will be demolished to make way for the new development.
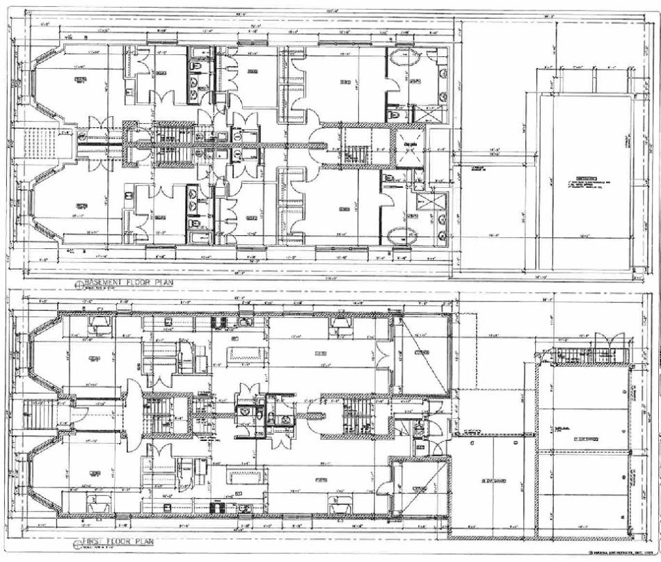
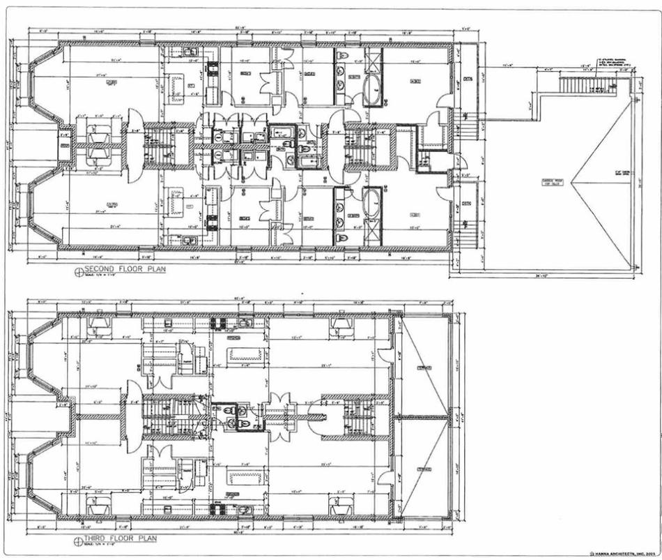
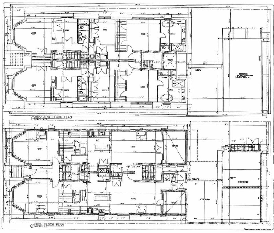
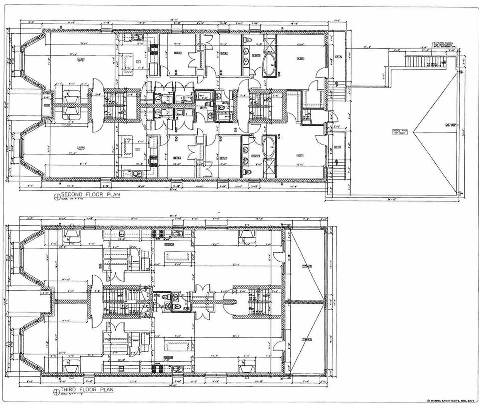
Designed by Hanna Architects, the four-story brick building will stand 45 feet tall. Inside, the building will have six condominium units with six parking spaces in an attached garage accessible from the alley.
The basement and first floor of the building will have two three-bedroom duplex down units with terraces at the back. The second floor will have two three-bedroom simplex condos. The third and fourth floors of the building will have two four-bedroom duplex condos that will have private rooftop access.
With City Council approval secured, the site will be rezoned from C1-1 to B2-2 to allow for the scope of the development. The developer can now move forward with permitting and construction.



