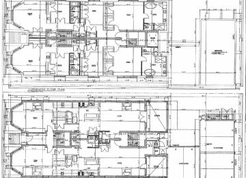
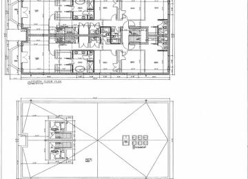
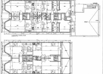
Image April 30, 2026 Demo permits issued to make way for project at 2249 W. Belmont The new four-story building will have six residential units
Image April 11, 2026 Full building permit issued for development at 2249 W. Belmont The four-story building will have six residential units
Image December 13, 2025 City Council approves residential development at 2249 W. Belmont The four-story building will have six residential units