Chicago-based developer Domus Real Estate Group recently presented their plans for a mixed-use development at 215 N. Racine to the local community last night. After the alderman pushed for more green space, the developer has incorporated plans for a green space on a separate site from the proposed tower.
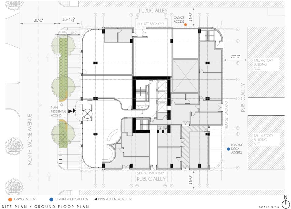
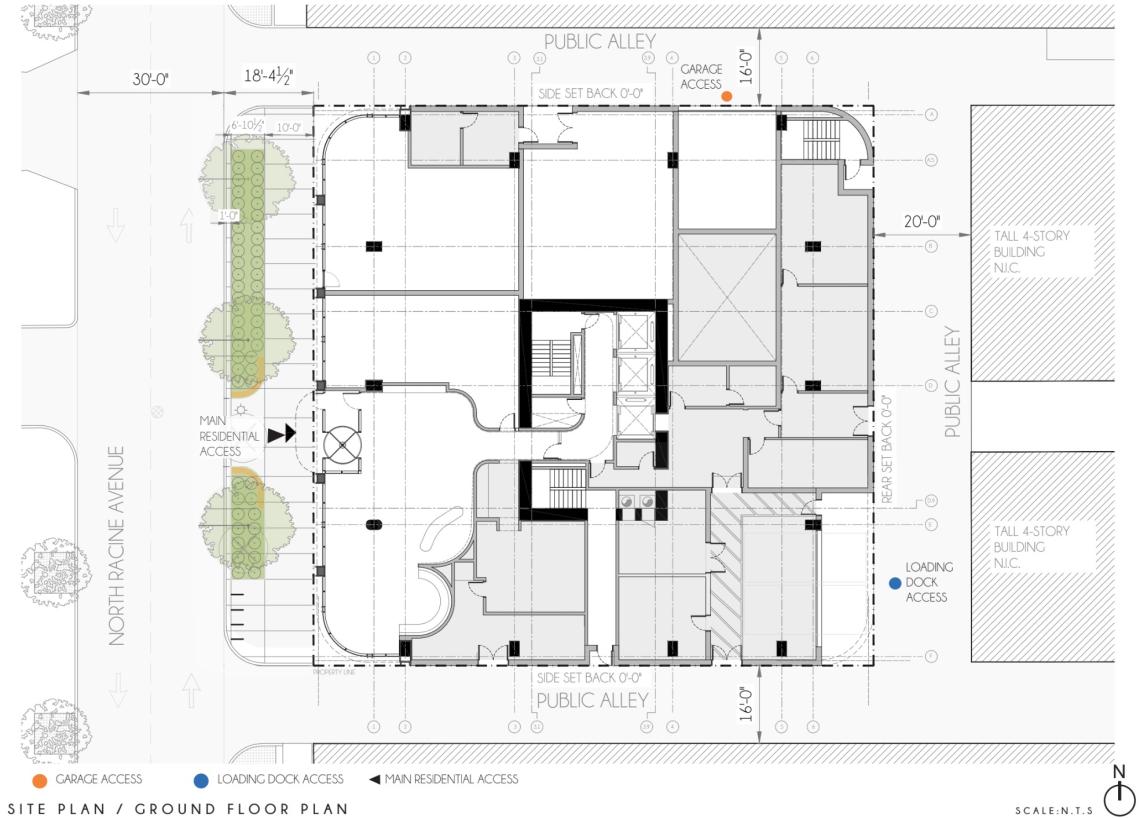
Situated within Fulton Market, the project site is a midblock property between W. Fulton St and W. Lake St bound by alleys on three sides and fronting N. Racine Ave. An existing three-story structure and surface parking lot would be cleared to make way for the project.
Designed by Archeo Design Studio, the proposed development would be a 30-story residential tower. The project would include 347 residential units, 1,128 square feet of retail space, 88 car parking spaces, and 350 bike parking spaces. To meet ARO requirements, the project’s unit mix will include 70 affordable units.
Topping out at 362 feet tall, the tower will keep its full footprint of the site as it rises with rounded corners to soften the bulk of the building. At the top, the building will setback for the amenity deck and mechanical penthouse and incorporate balconies into the massing. The parking podium has been designed to align in height with the building to the north with a setback at the amenity floor to create relief.
The building’s facade will feature a gridded metal expression with parking floors enclosed with perforated metal mesh screening and residential floors above enclosed with glass and metal paneling.
The ground floor of the project will be occupied with the residential lobby, leasing offices, and retail space all along the N. Racine Ave street frontage. The remainder of the ground floor would have mechanical spaces, the loading dock, and parking ramp up to the parking floors.
During the virtual community meeting Monday night hosted by West Loop Community Organization, the developer outlined plans for an off-site green space after Alderman Burnett requested the developer find a way to provide green space for the community. The developer has acquired a parcel at 1240 W. Carroll that would be open to the public but managed privately. While plans have not been finalized, the green space could host basketball and pickleball courts or remain open green space.
To allow for the project, the developer is seeking to rezone the site from DX-5 to DX-16 with a Planned Development designation. The project is also seeking an 8.7 FAR bonus by paying into the Neighborhood Opportunity Fund. Approvals will be needed from the Chicago Plan Commission, Committee on Zoning, and City Council.







