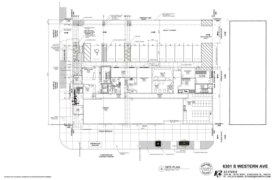
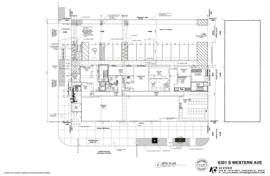
A full building permit has been issued for a mixed-use affordable development at 6301 S. Western. Planned by Southwest Organizing Project and Brinshore Development, the project will be located at the southeast corner of the intersection of S. Western Ave and W. 63rd Street. An existing building on the site will be demolished.
Designed by K2 Studio, the new five-story building will stand approximately 65 feet tall. On the ground floor, the building will have 2,250 square feet of retail space as well as a fitness room and community room all fronting S. Western Ave. The residential lobby will be accessed from W. 63rd St and a shared laundry room will be included behind the lobby. A surface parking lot will have 11 car parking spaces accessed via a curb cut along W. 63rd St.
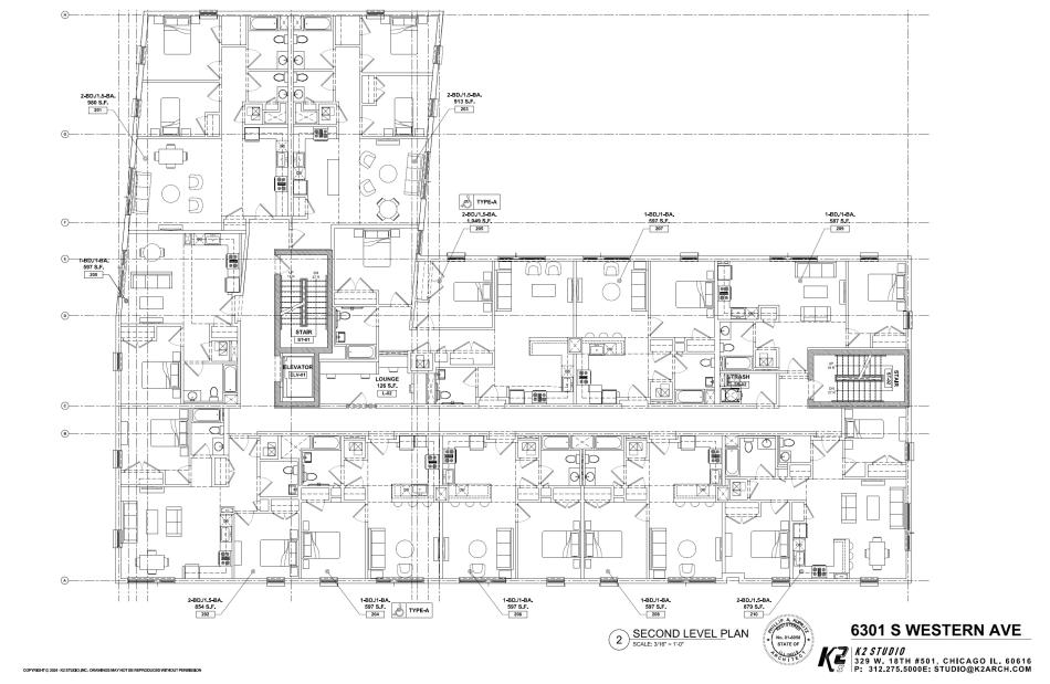
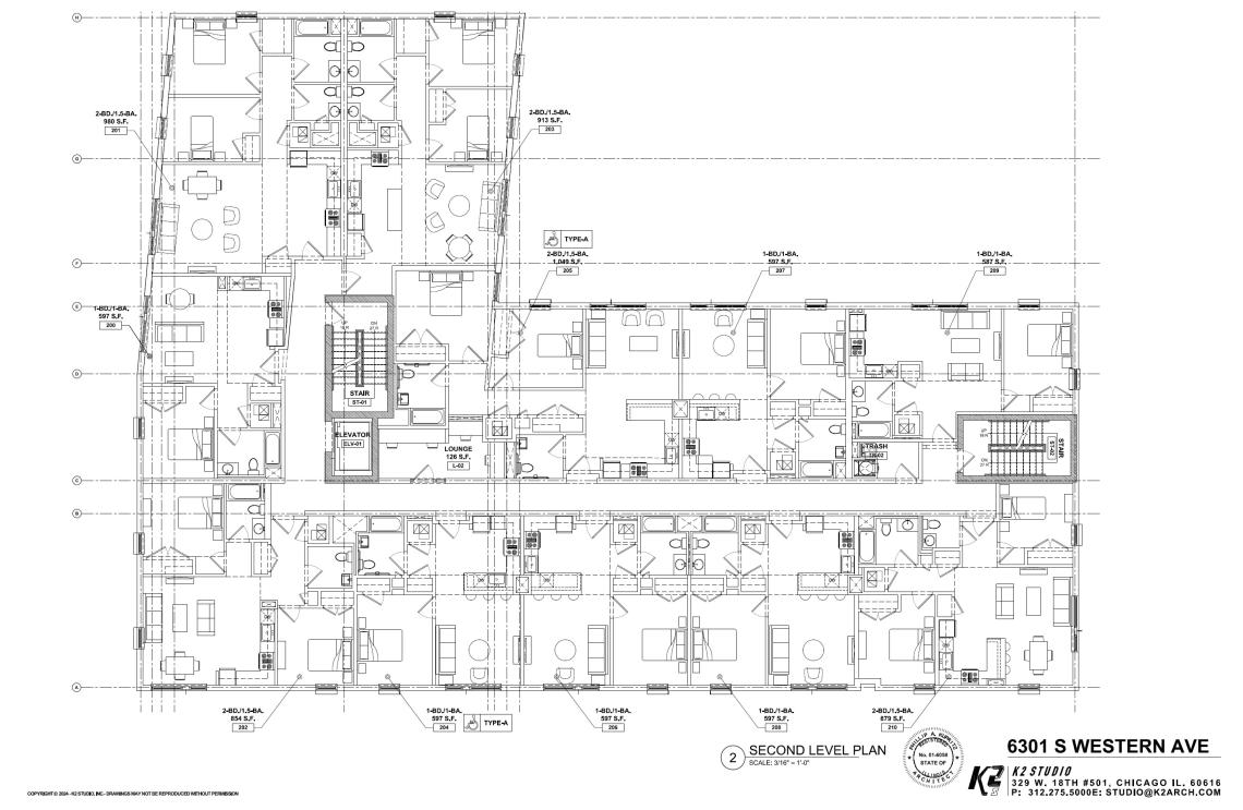
The upper four floors will hold all 44 residential units, which will all be affordable.
With the full building permit issued, general contractor Toro Construction Corp can begin the new construction and work through completion.



